Офис ул. Руставели Шота 22, 181м2

  • Печерский район ул. Руставели Шота 22
  • Код: RC-219-485
  • Добавлено: 25.02.2026
  • Добавить в избранное
Тип рынка
Вторичный рынок
Улица
ул. Руставели Шота 22
Призначення
Офисное помещение
Этаж
3 Этаж
Этажность
5 этажный дом
Общая площадь
181 м2
Общее состояние
С ремонтом
Цена:
346 478 грн.
8 000 USD
Описание объекта

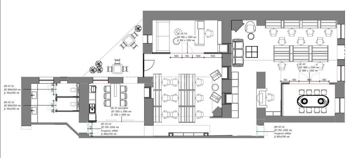
Офисное помещение. Состоит из 2 рабочих залов, 2 кабинетов руководителя, 2 переговорных, кухни, двух сан.узлов, гардеробной, зоны отдыха, балкона. Количество рабочих мест - 21, переговорная комната - 8 мест Состояние помещения - идеальное, полностью новый ремонт, мебель, техника. Офис полностью укомплектован современной качественной мебелью. На кухне вся необходимая для офиса техника: холодильник, плита, микроволновая печь, чайник, холодильник для вина. Бойлер. Система кондиционирования.

Похожие предложения