Офис ул. Руденко Ларисы 6А, 204м2

  • Дарницкий район ул. Руденко Ларисы 6А
  • Код: RC-218-588
  • Добавлено: 30.11.2025
  • Добавить в избранное
Тип рынка
Вторичный рынок
Улица
ул. Руденко Ларисы 6А
Призначення
Офисное помещение
Этаж
5 Этаж
Этажность
8 этажный дом
Общая площадь
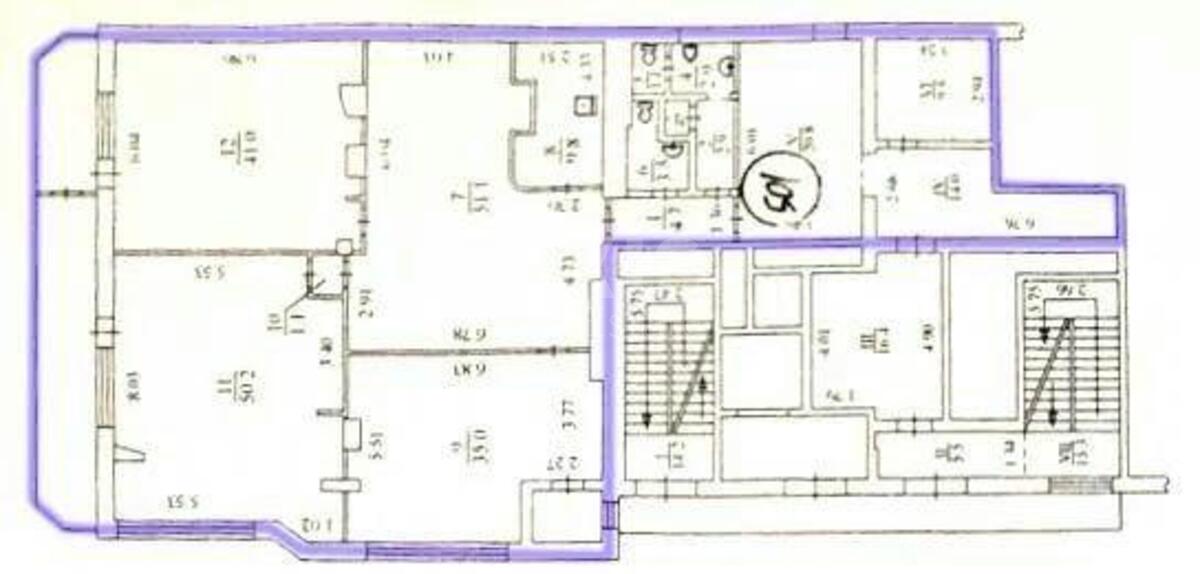
204 м2
Общее состояние
С ремонтом
Цена:
35 000 грн.
827 USD
  • AXIS Real Estate
  • AXIS Real Estate
  • AXIS Real Estate
Описание объекта

Офисное помещение. Площадь: 204 м2. Ресепшн, 4 кабинета, кухня, 2 санузла. Кондиционеры, бойлер, бойлер. Предлагается с мебелью. Система (СКД). Станция метро Позняки - 7 мин. Нежилой фонд.

Дополнительная информация

Похожие предложения