Аренда

Все фото (16)
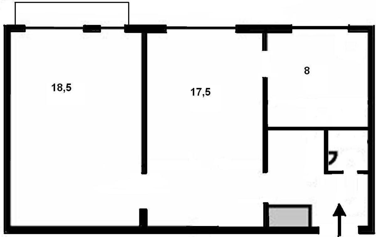
Офис ул. Александра Конисского 48, 52м2
- Добавить в избранное
-
Поделиться ссылкой
Тип рынка
Вторичный рынок
Улица
ул. Александра Конисского 48
Призначення
Офисное помещение
Этаж
2 Этаж
Этажность
4 этажный дом
Общая площадь
52 м2
Общее состояние
С ремонтом
Цена:
25 030 грн.
599 USD
Описание объекта
Офисное помещение. Офисный качественный ремонт, все коммуникации - кондиционеры, Интернет, пожарная и охранная сигнализации, высота потолка 3,20 метра, балкон. Бронированная дверь. Фасадные окна, парадное со двора. Двор на шлагбауме. Парковка возможна во дворе, также рядом подземный паркинг. В пешей доступности ж/д вокзал, м. Университет, м. Лукьяновская, Цирк, улицы Гончара и Б.Хмельницкого.
Дополнительная информация