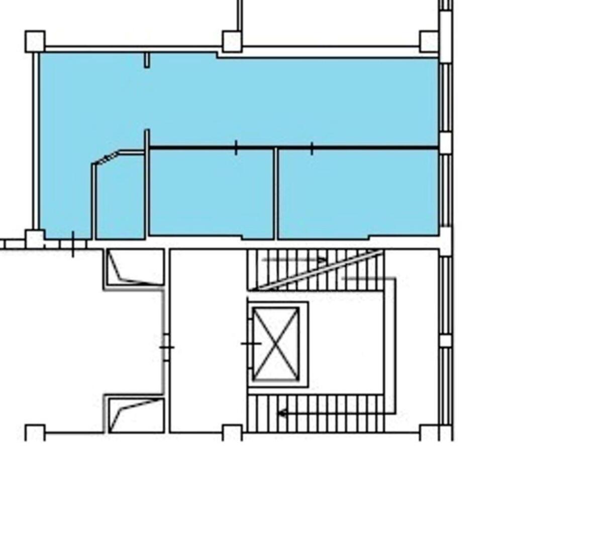
Офис ул. Липковского Василия Митрополита 45, 83м2

  • Соломенский район ул. Липковского Василия Митрополита 45
  • Код: RC-219-837
  • Добавлено: 31.01.2026
  • Добавить в избранное
Тип рынка
Вторичный рынок
Улица
ул. Липковского Василия Митрополита 45
Призначення
Офисное помещение
Этаж
8 Этаж
Этажность
9 этажный дом
Общая площадь
83 м2
Общее состояние
С ремонтом
Цена:
29 222 грн.
682 USD
Описание объекта

Офисное помещение. Безопасность: Ресепшн сервис. Карточная система пропусков. Охрана 24/7. Пожарное оповещение. Укрытие на цокольном этаже с двумя входами. Система оповещения во время воздушной тревоги. Оснащение: Бесперебойная электрическая система. Отопление и кондиционирование. Водоснабжение и водоотведение.

Похожие предложения