Офис ул. Гайдара 58/10, 261м2

  • Голосеевский район ул. Гайдара 58/10
  • Код: RC-217-475
  • Добавлено: 05.11.2025
  • Добавить в избранное
Тип рынка
Вторичный рынок
Улица
ул. Гайдара 58/10
Призначення
Офисное помещение
Этаж
3 Этаж
Этажность
5 этажный дом
Общая площадь
261 м2
Общее состояние
С ремонтом
Цена:
214 267 грн.
5 094 USD
  • AXIS Real Estate
  • AXIS Real Estate
  • AXIS Real Estate
Описание объекта

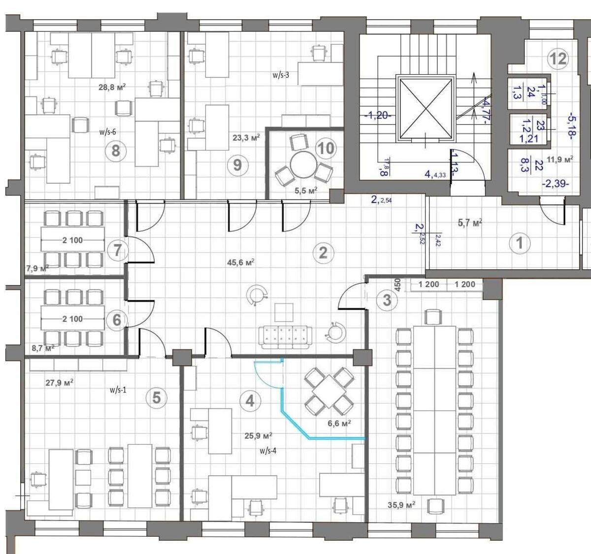
Офисное помещение. Планировка: зона open space, отдельные кабинеты, переговорные комнаты и skype room, серверная, 2 блока санузлов. Ремонт: косметический, с возможностью быстрого заезда арендатора. На территории бизнес парка - трехуровневый крытый паркинг на 450 мест, 4 точки питания, внутренний двор с зоной отдыха, 2 террасы, салон красоты, арт-студия, конференц-зал, а также парковка с электрозарядками для самокатов и велосипедов.

Дополнительная информация

Похожие предложения