Офис ул. Дмитриевская 18/24, 1070м2

  • Шевченковский район ул. Дмитриевская 18/24
  • Код: SC-224-194
  • Добавлено: 26.04.2026
  • Добавить в избранное
Тип рынка
Вторичный рынок
Улица
ул. Дмитриевская 18/24
Призначення
Офисное помещение
Этаж
2 Этаж
Этажность
12 этажный дом
Общая площадь
1070 м2
Общее состояние
С ремонтом
Цена:
56 573 228 грн.
1 284 720 USD
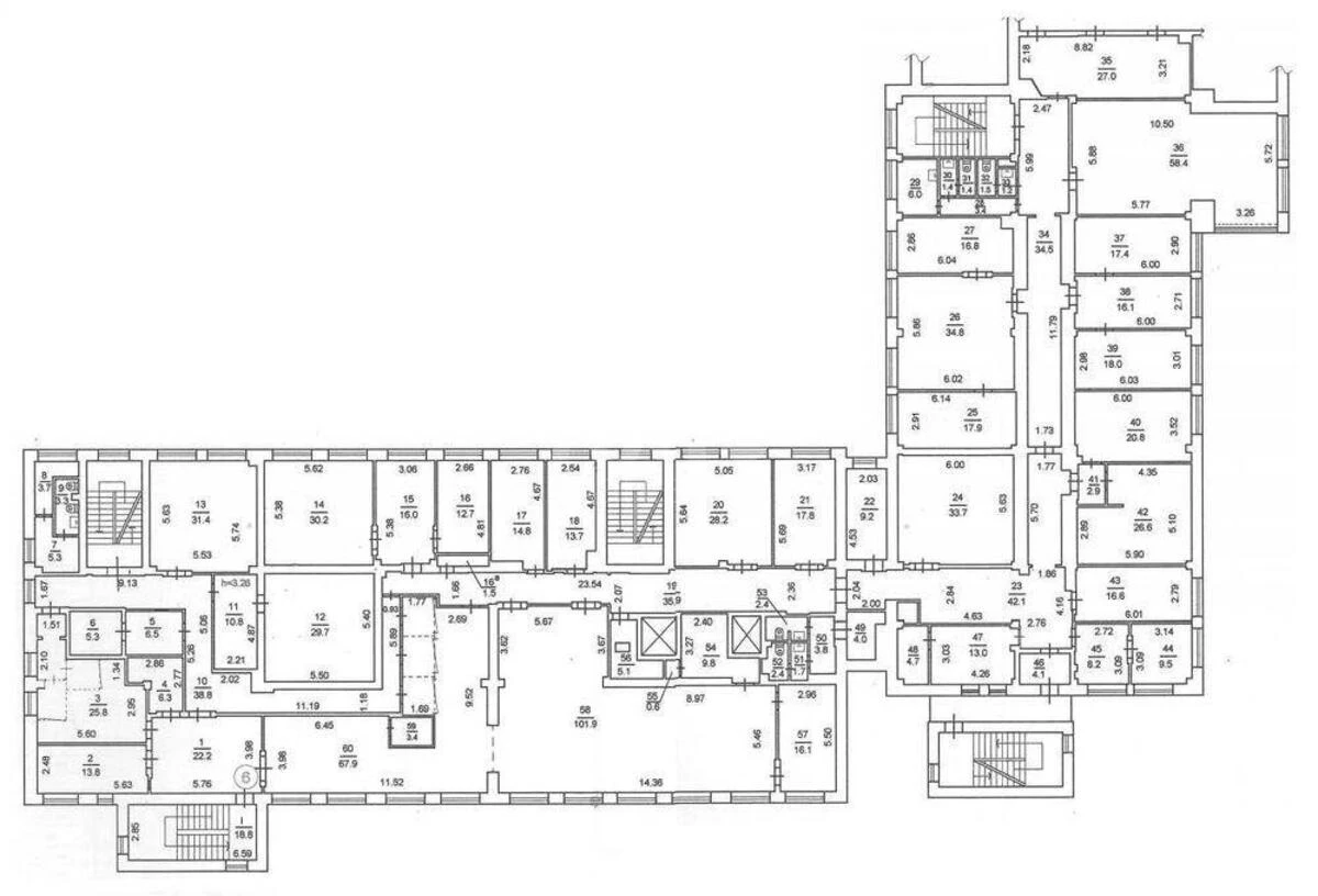
Описание объекта

Офисное помещение. В помещении выполнен свежий косметический ремонт, два входа, отдельный и пожарный выход, три санузла с несколькими кабинами, электрическая мощность 90 кВт, система кабинетов, в каждом кабинете установлены новые кондиционеры, на фасаде здания и во внутреннем дворе имеется парковка.

Похожие предложения