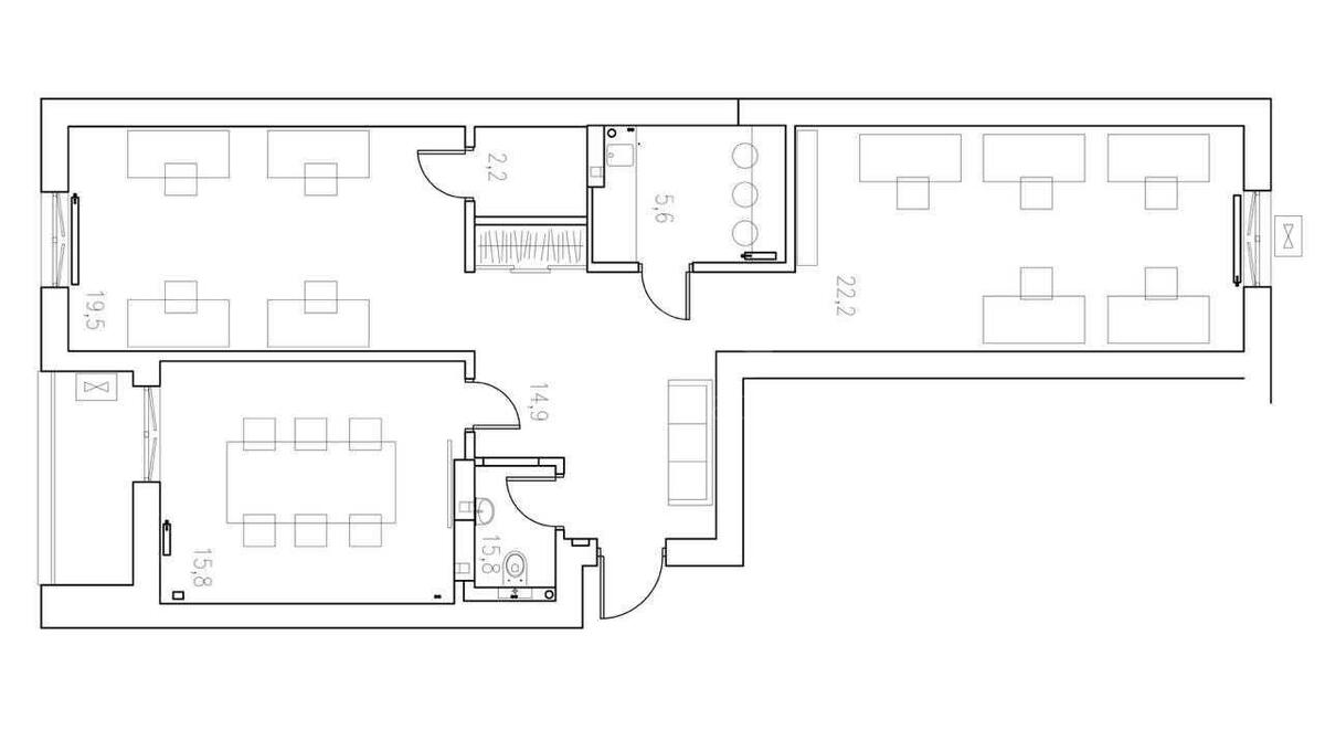
Офис ул. Дегтярная 29, 85м2

  • Подольский район ул. Дегтярная 29
  • Код: SC-218-939
  • Добавлено: 26.02.2026
  • Добавить в избранное
Тип рынка
Вторичный рынок
Улица
ул. Дегтярная 29
Призначення
Офисное помещение
Этаж
2 Этаж
Этажность
8 этажный дом
Общая площадь
85 м2
Общее состояние
С ремонтом
Цена:
9 133 460 грн.
211 000 USD
Описание объекта

ЖК Подол Град, офисное помещение. Современное светлое офисное помещение с качественным ремонтом в стиле лофт, выполненным в светлых цветах. Расположено на втором этаже 8-этажного здания. Каждый из кабинетов и переговорная офиса оборудованы кондиционерами. В холле имеется большой шкаф для верхней одежды и других вещей. В офис заведено оптоволоконный интернет. На территории ЖК, в 1 мин ходьбы от офиса, размещен паркинг, который также служит укрытием.

Похожие предложения