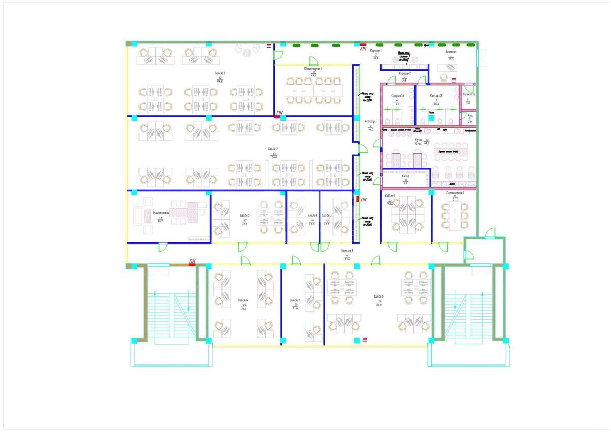
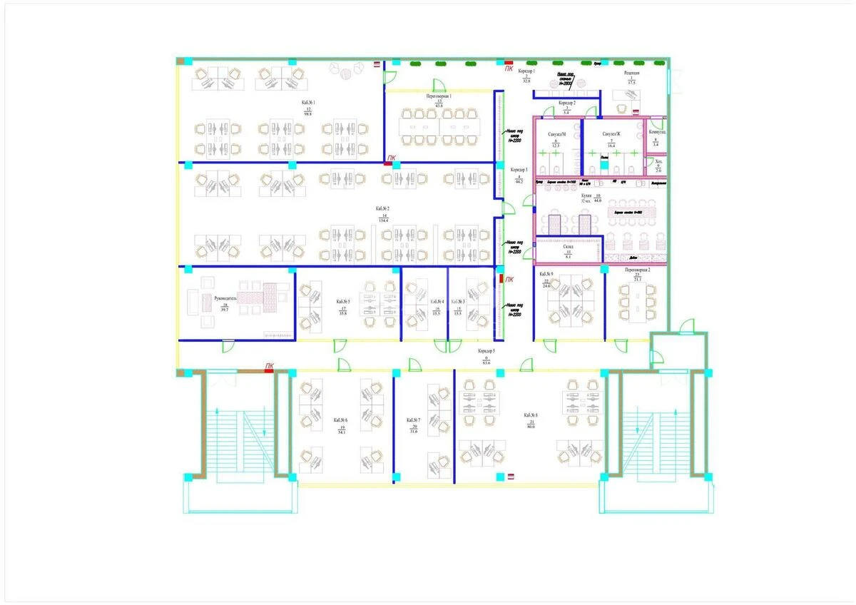
Офис ул. Борщаговская 154, 891м2

  • Соломенский район ул. Борщаговская 154
  • Код: RC-213-440
  • Добавлено: 11.08.2025
  • Добавить в избранное
Тип рынка
Вторичный рынок
Улица
ул. Борщаговская 154
Призначення
Офисное помещение
Этаж
4 Этаж
Этажность
7 этажный дом
Общая площадь
891 м2
Общее состояние
С ремонтом
Цена:
448 287 грн.
10 700 USD
  • AXIS Real Estate
  • AXIS Real Estate
  • AXIS Real Estate
Описание объекта

Офисное помещение. Кабинетная система, качественный офисный ремонт, кухня, санузел. Расположение в современном бизнес-центре с охраной, круглосуточным доступом и бесплатным паркингом. Удобная транспортная развязка, рядом метро 'Шулявская'. Арендная ставка - 14 долл/м². Идеально подходит для компании с офисным персоналом или учебного центра.

Дополнительная информация

Похожие предложения