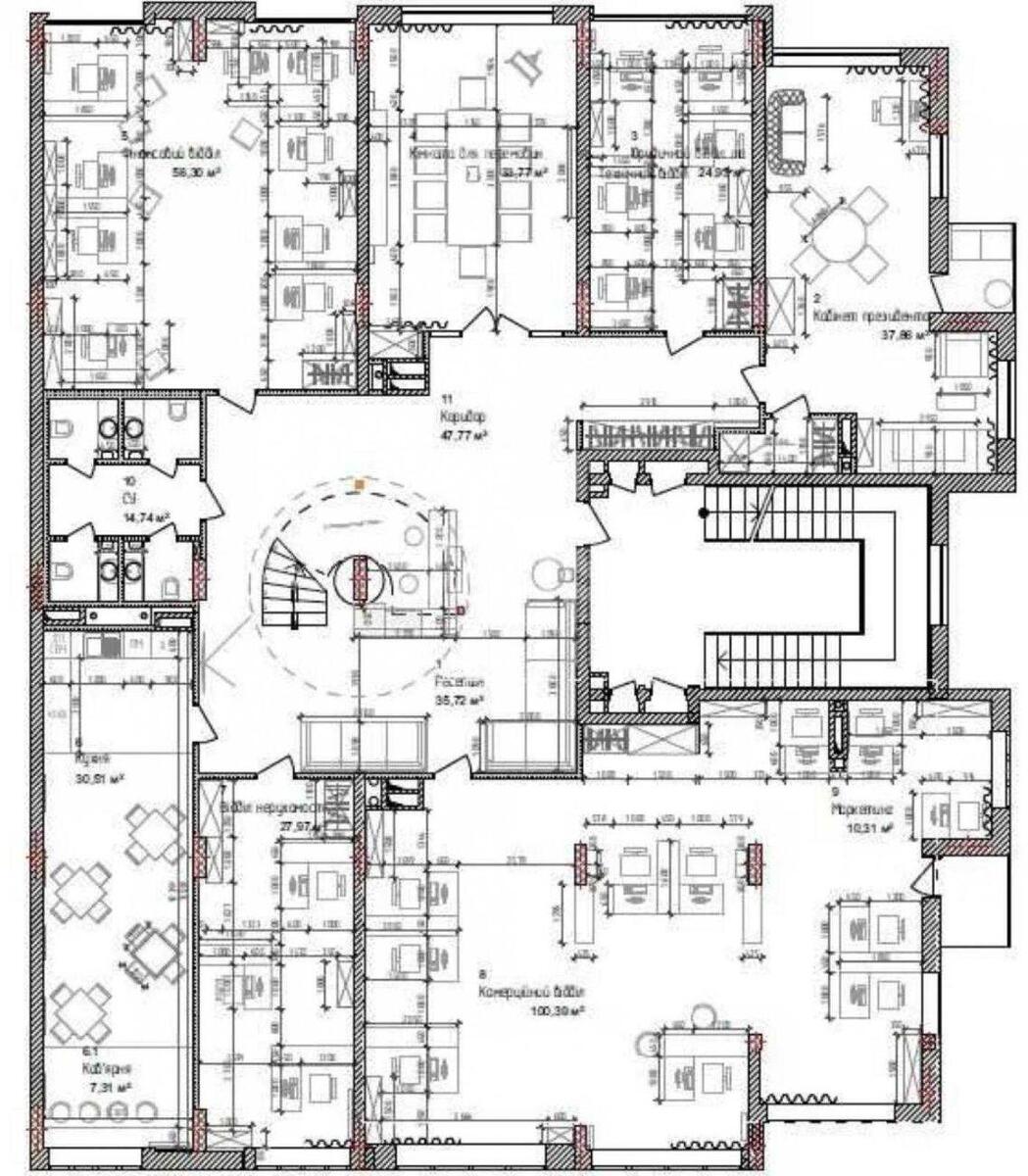
Офис ул. Андрея Верхогляда 20А, 429м2

  • Печерский район ул. Андрея Верхогляда 20А
  • Код: RC-220-201
  • Добавлено: 26.02.2026
  • Добавить в избранное
Тип рынка
Вторичный рынок
Улица
ул. Андрея Верхогляда 20А
Призначення
Офисное помещение
Этаж
2 Этаж
Этажность
25 этажный дом
Общая площадь
429 м2
Общее состояние
С ремонтом
Цена:
432 865 грн.
10 000 USD
Описание объекта

ЖК «Новопечерские Липки», офисное помещение. Офис расположен на 2 этаже и идеально подходит для компаний, ценящих комфорт, безопасность и представительный уровень локации. Престижный и безопасный жило-деловой комплекс. Развитая внутренняя инфраструктура: рестораны, кафе, банки, фитнес, сервисы. Удобная транспортная развязка. Пешая доступность до метро «Зверинецкая» (Дружбы народов). Стоимость аренды составляет 10000 USD в месяц, коммунальные услуги оплачиваются отдельно.

Похожие предложения