Офис пер. Лысогорский 26, 53м2

  • Голосеевский район пер. Лысогорский 26
  • Код: SC-214-124
  • Добавлено: 26.08.2025
  • Добавить в избранное
Тип рынка
Вторичный рынок
Улица
пер. Лысогорский 26
Призначення
Офисное помещение
Этаж
1 Этаж
Этажность
26 этажный дом
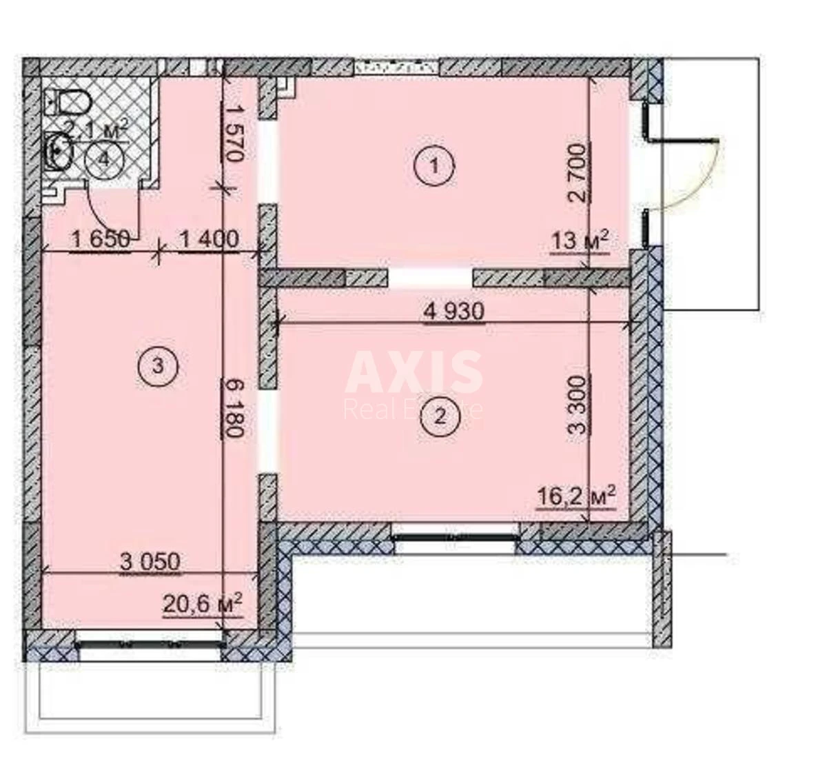
Общая площадь
53 м2
Общее состояние
Без ремонта
Цена:
3 723 974 грн.
88 500 USD
  • AXIS Real Estate
  • AXIS Real Estate
  • AXIS Real Estate
Описание объекта

ЖК 'Оранж сити', помещение свободного назначения. Высота потолка 3,5м2. Первый этаж 26-этажного многоквартирного дома (675 квартир). Выполнена базовая отделка: в зале: уложена плитка на пол, стены оштукатурены и окрашены матовой латексной краской в 2 слоя, разветвленная электрика, в с/у: уложена плитка на полу и на стенах, установлен 1 унитаз и, 1 умывальник, 1 боллер на 10 литров. Коммуникации: электроэнергия 16 квт. (3 фазы Х 25 ампер), холодная вода, канализация централизованная, в с / у есть выход для вытяжки.

Дополнительная информация

Похожие предложения