Офис пр-т Голосеевский 60, 2429м2

  • Голосеевский район пр-т Голосеевский 60
  • Код: SC-216-916
  • Добавлено: 22.10.2025
  • Добавить в избранное
Тип рынка
Вторичный рынок
Улица
пр-т Голосеевский 60
Призначення
Офисное помещение
Этаж
1 Этаж
Этажность
22 этажный дом
Общая площадь
2429 м2
Общее состояние
С ремонтом
Цена:
154 572 587 грн.
3 700 000 USD
  • AXIS Real Estate
  • AXIS Real Estate
  • AXIS Real Estate
Описание объекта

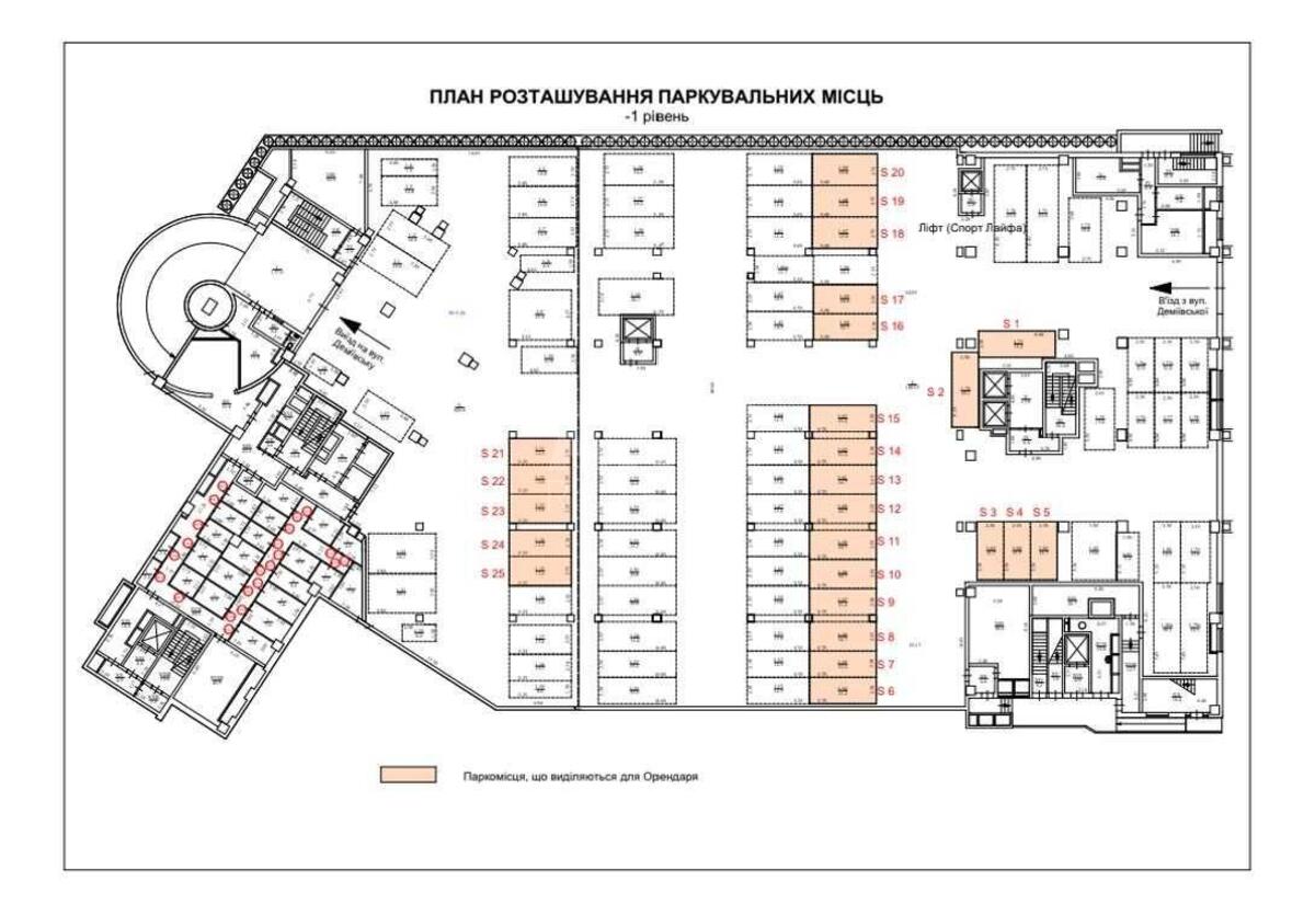
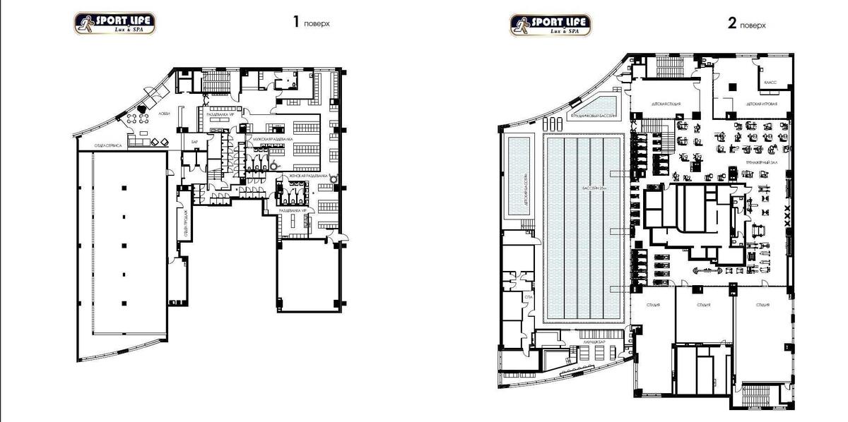
ЖК Park Avenue VIP, офисное помещение. Помещение общей площадью 2429 м2, имеет открытую планировку open space, отдельные входные группы и расположено на 2х уровнях (1 и 2 этажи здания). Заведена элктрическая мощность 438 КВт. В данный момент помещение арендует крупнейшая сеть спортивных центров Sport Life. Спортивный центр работает в формате Sport Life LUX с бассейном и СПА-зоной. При необходимости, возможно досрочное прекращение действия Договора аренды.

Дополнительная информация