Дoм ул. Чалого Михаила, 120м2, город Киев

  • Київ ул. Чалого Михаила 39
  • Код: SH-215-997
  • Добавлено: 29.11.2025
  • Добавить в избранное
Тип рынка
Вторичный рынок
Вид
Однокомнатная
Улица
ул. Чалого Михаила 39
Соток
5
Количество комнат
4
Этажность
1 этажный дом
Общее состояние
С ремонтом
Цена:
10 950 686 грн.
259 000 USD
  • AXIS Real Estate
  • AXIS Real Estate
  • AXIS Real Estate
Описание объекта

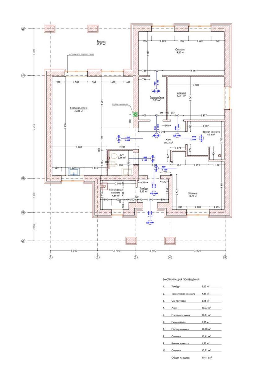
4 комнатный дом. 5 соток земли, общая площадь 120м2. Дом возле хвойного леса, построен в конце 2021 года. Ремонт делали для себя, много дорогих, качественных материалов. Планировка: Кухня-гостиная, 3 спальни, гардероб, 2 санузла, хоз. блок (комната с коммуникациями/прачечная) и терраса. Дом из керамического кирпича, утеплитель минеральная вата, вентилируемый фасад из клинкерного кирпича, железо-бетонные перекрытия над первым и вторым этажом, место для стоянки на 2 автомобиля, закрытая улица для жителей коттеджного городка, индивидуальный двухконтурный газовый котел BOSCH, подведен газ, скважина 70+ метров, центральная канализация.

Дополнительная информация

Похожие предложения