Офис ул. Большая Васильковская 72, 243м2

  • Печерский район ул. Большая Васильковская 72
  • Код: RC-192-648
  • Добавлено: 21.05.2024
  • Добавить в избранное
Тип рынка
Вторичный рынок
Улица
ул. Большая Васильковская 72
Призначення
Офисное помещение
Этаж
21 Этаж
Этажность
29 этажный дом
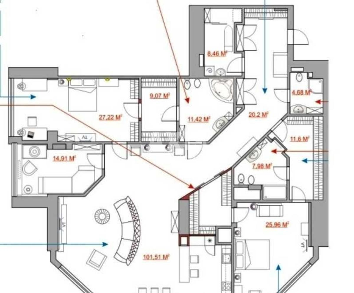
Общая площадь
243 м2
Общее состояние
С ремонтом
Цена:
96 974 грн.
2 300 USD
Описание объекта

Офисное помещение. Помещение находится на 21 этаже. Из офиса открывается панорамный вид на центр Киева. Планировка: зона OPEN SPACE 101 м2 с открытой кухней, 3 отдельных кабинета, 4 санузла, 2 гардеробные. Выполнен качественный ремонт с использованием экологичных материалов. Напольное покрытие по всей площади керамическая плитка. Кухня полностью оборудована бытовой техникой (электроплита, духовая печь, посудомоечная машина, система очистки воды). В помещении установлена система кондиционирования.

Похожие предложения