5к квартира ул. Заболотного Академика 1

  • Голосеевский район ул. Заболотного Академика 1
  • Код: SF-3-265-429
  • Добавлено: 24.02.2026
  • Добавить в избранное
Тип рынка
Первичный рынок
Улица
ул. Заболотного Академика 1
Количество комнат
5
Этаж
9 Этаж
Этажность
34 этажный дом
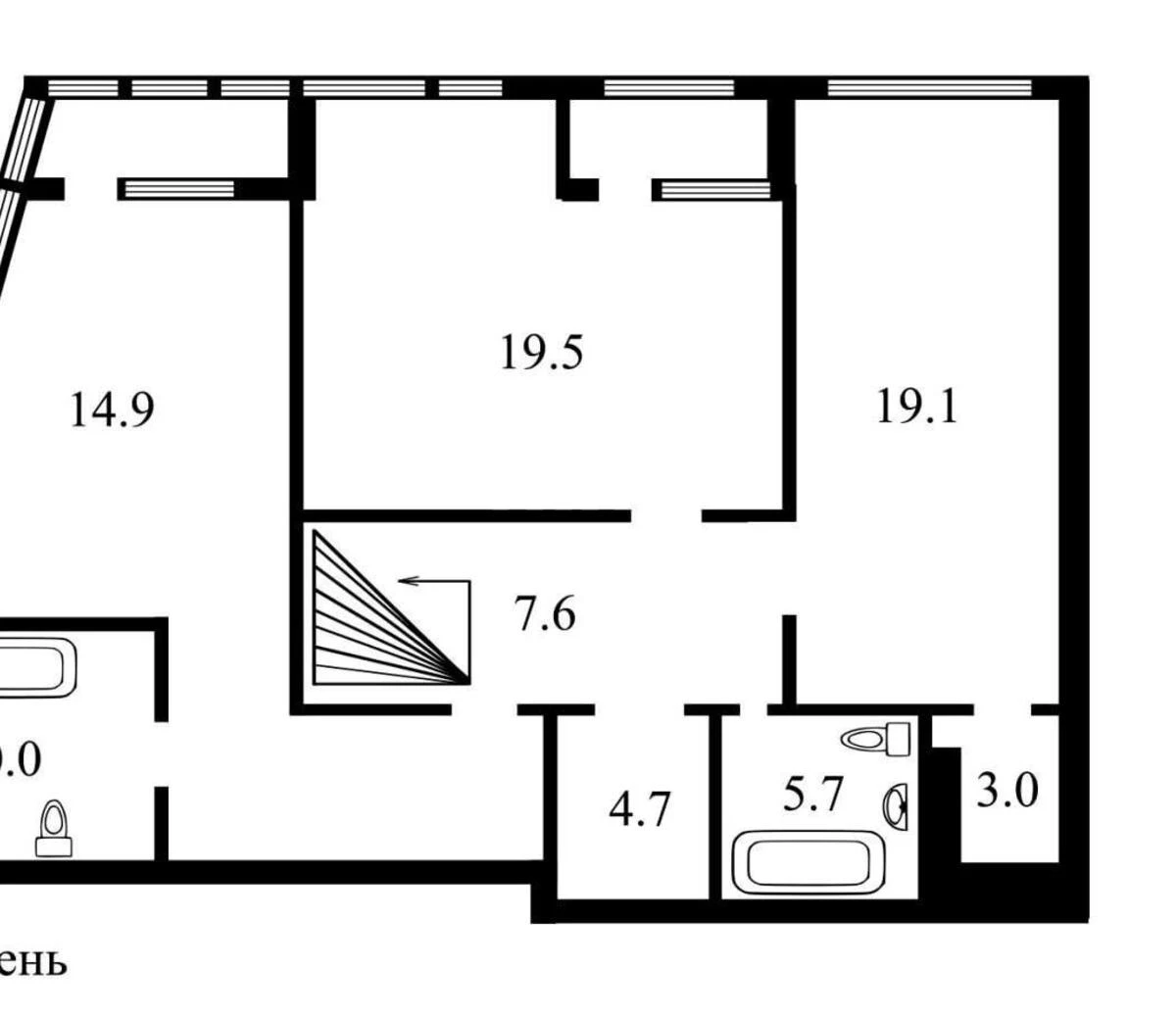
Общая площадь
205 м2
Общее состояние
Без ремонта
Цена:
12 550 981 грн.
290 000 USD
Описание объекта

ЖК Метрополис, 5 комнатная квартира. Квартира в сданном доме, можно делать ремонт. Развитая инфраструктура вокруг: торговый центр, две станции метро, удобная транспортная развязка, школы, детские сады, парк ВДНХ. Также идеально подойдет под офис закрытого типа.

Похожие предложения