5к квартира ул. Сечевых Стрельцов 52А

  • Шевченковский район ул. Сечевых Стрельцов 52А
  • Код: SF-3-208-795
  • Добавлено: 17.09.2025
  • Добавить в избранное
Тип рынка
Вторичный рынок
Улица
ул. Сечевых Стрельцов 52А
Количество комнат
5
Этаж
19 Этаж
Этажность
20 этажный дом
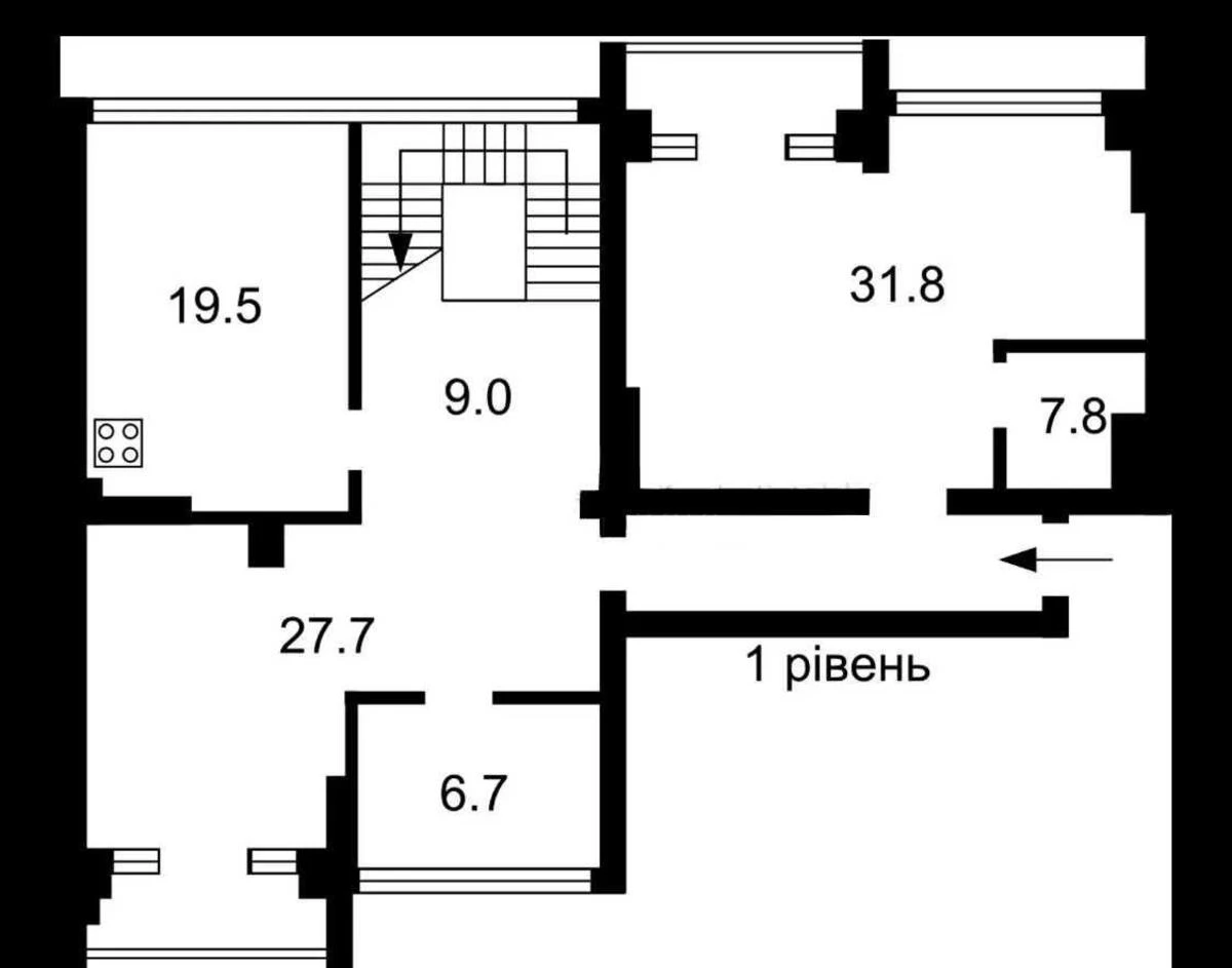
Общая площадь
256 м2
Общее состояние
Без ремонта
Цена:
12 382 366 грн.
295 000 USD
  • AXIS Real Estate
  • AXIS Real Estate
  • AXIS Real Estate
Описание объекта

5 комнатная квартира. Двухуровневый пентхаус общей площадью 256 м² находится на 19-20 этажах. Состояние объекта: после строителей. Функциональная двусторонняя планировка, потолок 2.9 метра. Замечательные панорамные характеристики. Возможно дальнейшее разделение на 2 отдельные квартиры. Подземный паркинг, охрана, консьерж, хорошее состояние, уютно, зелено, под'езды опрятные, рядом Львовская площадь, Пейзажная аллея, Андреевский спуск, супермаркеты.

Дополнительная информация

Похожие предложения