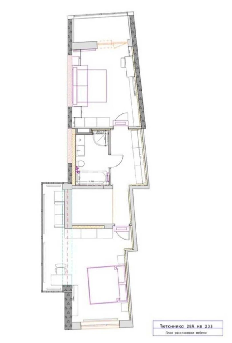
3к квартира ул. Василия Тютюнника 28А

  • Печерский район ул. Василия Тютюнника 28А
  • Код: RF-3-293-304
  • Добавлено: 11.04.2026
  • Добавить в избранное
Тип рынка
Первичный рынок
Улица
ул. Василия Тютюнника 28А
Количество комнат
3
Этаж
23 Этаж
Этажность
23 этажный дом
Общая площадь
105 м2
Общее состояние
С ремонтом
Цена:
73 858 грн.
1 700 USD
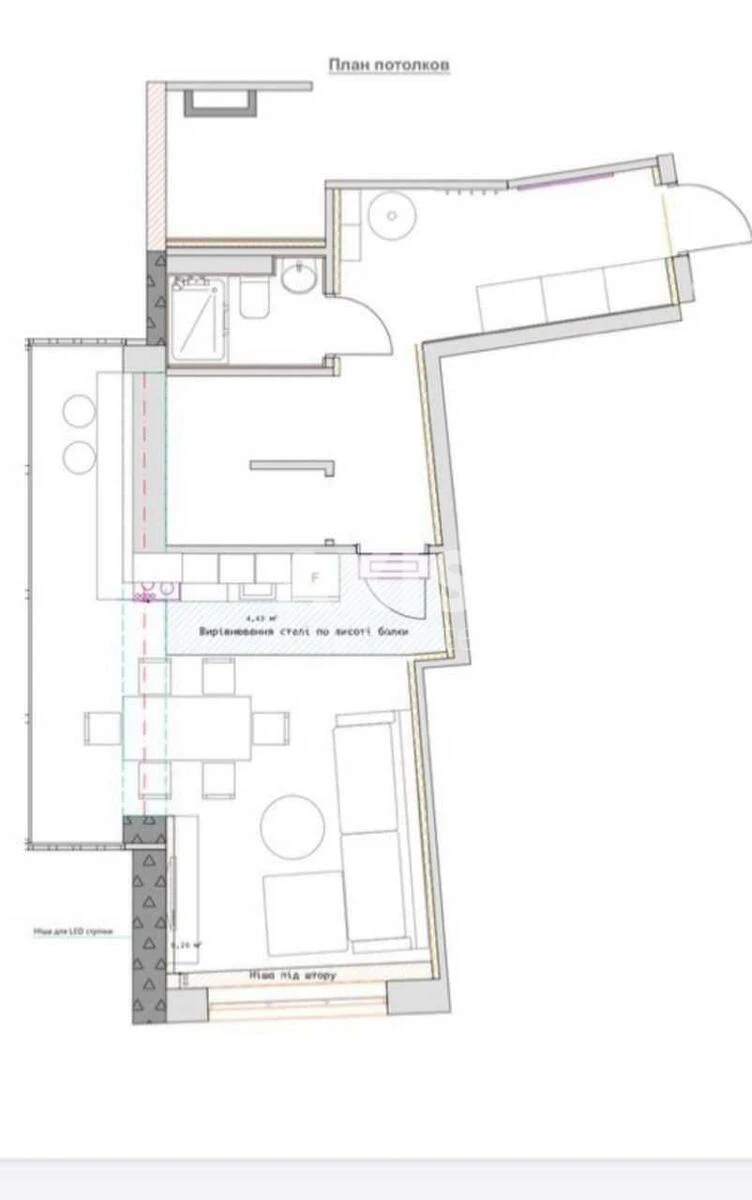
Описание объекта

ЖК Cardinal, 3-комнатная квартира. В доме есть ГЕНЕРАТОР. Бесперебойная работа лифтов, водоснабжения и отопления Предлагается современная 3-комнатная квартира площадью 105 квадратных метров, расположенная на 23-24 этажах по адресу Василия Тютюнника (Анри Барбюса) 28а. Квартира оборудована всем необходимым для комфортной жизни: 3 кондиционера, холодильник, варочная панель, вытяжка, духовка, посудомоечная машина, стиральная машина, бойлер, домофон и Wi-Fi.

Похожие предложения