3к квартира ул. Святослава Храброго 7

  • Соломенский район ул. Святослава Храброго 7
  • Код: SF-3-283-822
  • Добавлено: 26.02.2026
  • Добавить в избранное
Тип рынка
Вторичный рынок
Улица
ул. Святослава Храброго 7
Количество комнат
3
Этаж
13 Этаж
Этажность
15 этажный дом
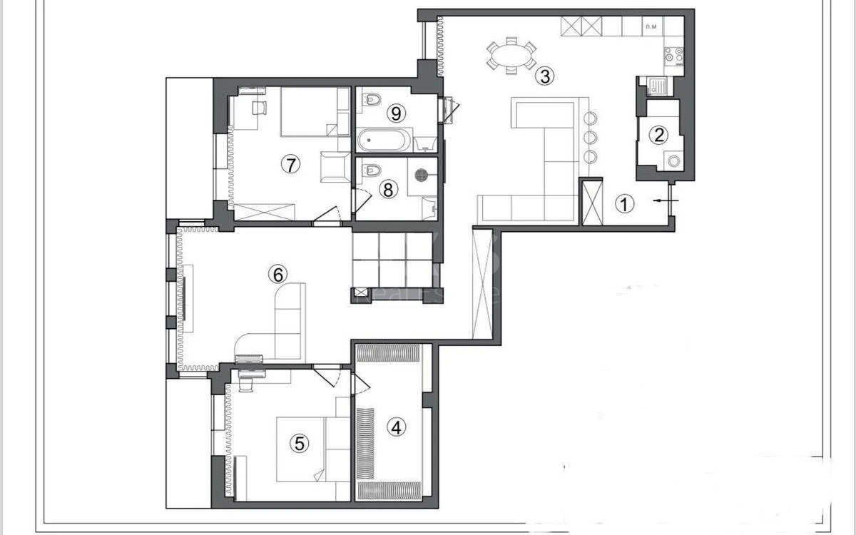
Общая площадь
140 м2
Общее состояние
Без ремонта
Цена:
6 441 037 грн.
148 800 USD
Описание объекта

3 комнатная квартира. Просторная квартира с красивым видом, которая отличается удобной и функциональной планировкой. Здесь есть 2 спальни, 2 гардеробные комнаты и 2 санузла, что позволяет организовать пространство по своему вкусу и потребностям. Квартира в состоянии после строителей, что дает возможность осуществить ремонт в соответствии с вашими предпочтениями. Дом имеет централизованное отопление для вашего комфорта. Придомовая территория обеспечивает все необходимое для комфортного проживания.

Похожие предложения