3к квартира ул. Львовская 15

  • Святошинский район ул. Львовская 15
  • Код: SF-3-239-023
  • Добавлено: 11.11.2025
  • Добавить в избранное
Тип рынка
Первичный рынок
Улица
ул. Львовская 15
Количество комнат
3
Этаж
24 Этаж
Этажность
25 этажный дом
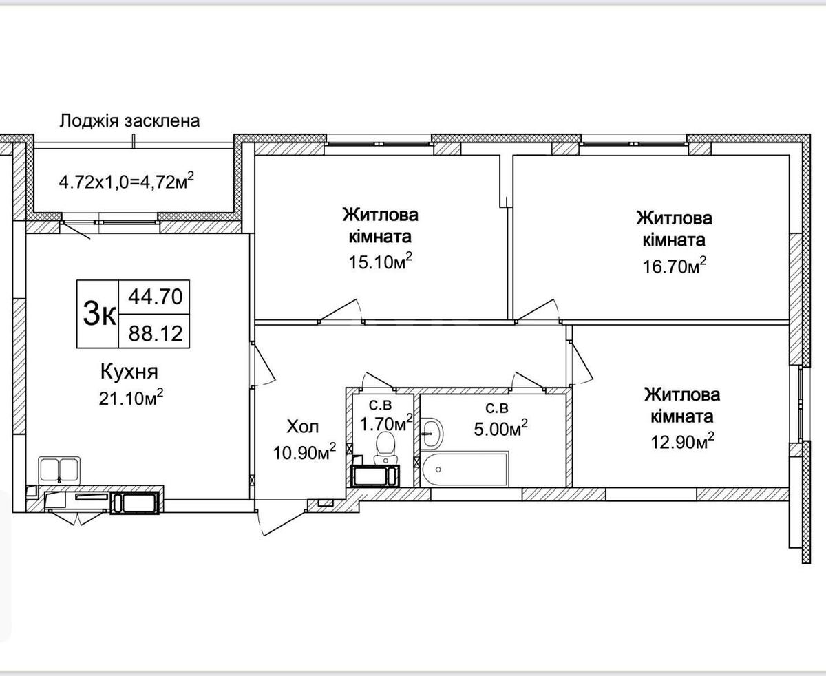
Общая площадь
88 м2
Общее состояние
Без ремонта
Цена:
6 081 368 грн.
145 000 USD
  • AXIS Real Estate
  • AXIS Real Estate
  • AXIS Real Estate
Описание объекта

ЖК Святобор, 3 комнатная квартира. Комплекс имеет удобную транспортную развязку: до станции метро Святошино и Житомирская -10 минут пешком, до станции метро Крещатик -15 минут на метро, до проспекта Победы - 5 минут пешком. Вторая линия от проспекта Победы, что делает дом тихим и защищенным от шума дороги. Рядом- в пешей доступности, находится: продуктовые магазины, кофейни, НП, больницы, парки, детские сады и две государственные школы. Место где расположен Святобор - спальный микрорайон, на пересечении двух парковых зон.

Дополнительная информация

Похожие предложения