3к квартира ул. Джона Маккейна 1Б

  • Печерский район ул. Джона Маккейна 1Б
  • Код: SF-3-247-793
  • Добавлено: 29.11.2025
  • Добавить в избранное
Тип рынка
Первичный рынок
Улица
ул. Джона Маккейна 1Б
Количество комнат
3
Этаж
22 Этаж
Этажность
24 этажный дом
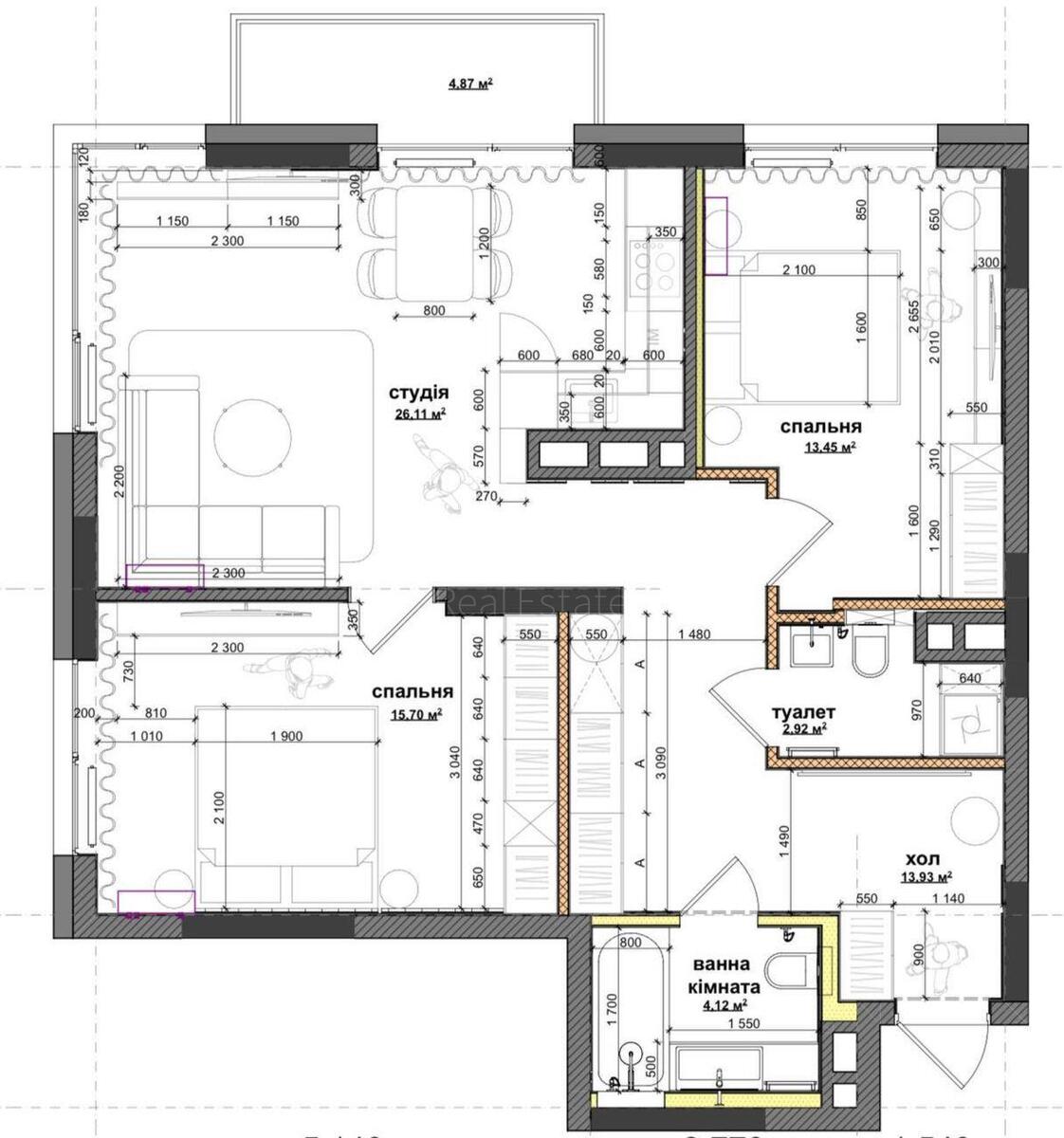
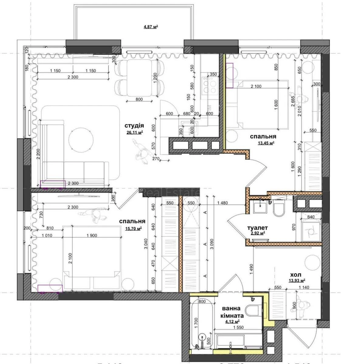
Общая площадь
80 м2
Общее состояние
С ремонтом
Цена:
17 715 588 грн.
419 000 USD
  • AXIS Real Estate
  • AXIS Real Estate
  • AXIS Real Estate
Описание объекта

ЖК Французский квартал 2, 3 комнатная квартира. Панорама на Печерск, Ocean Plaza и Голосеевский парк. Планировка: кухня-гостиная 26 м², спальня 18 м², комната свободного назначения 22 м², 2 санузла, панорамный балкон. Новый дизайнерский ремонт 2024 года. Замена всех коммуникаций, подготовка под автономное электропитание (до 8 часов). Система 9-ступенчатой очистки и минерализации воды.

Дополнительная информация

Похожие предложения