3к квартира ул. Глубочицкая 13

  • Шевченковский район ул. Глубочицкая 13
  • Код: SF-3-233-129
  • Добавлено: 30.10.2025
  • Добавить в избранное
Тип рынка
Первичный рынок
Улица
ул. Глубочицкая 13
Количество комнат
3
Этаж
9 Этаж
Этажность
10 этажный дом
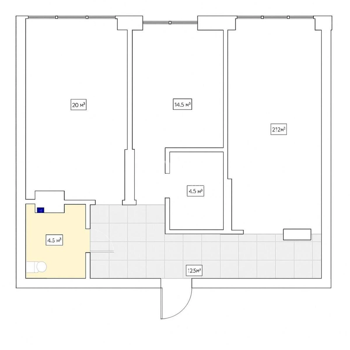
Общая площадь
75 м2
Общее состояние
С ремонтом
Цена:
6 313 192 грн.
149 900 USD
  • AXIS Real Estate
  • AXIS Real Estate
  • AXIS Real Estate
Описание объекта

ЖК Львовский квартал, 3 комнатная квартира. Современная квартира с авторским ремонтом 2022 года, выполненным из качественных материалов. Просторная планировка включает большую кухню-студию, две отдельные спальни, гардеробную комнату и смежный санузел. Кухня изготовлена на заказ - столешница из камня, фурнитура премиум-класса, полный набор встроенной техники: варочная поверхность, духовой шкаф, посудомоечная машина, двойная раковина, смеситель с длинным изливом и система фильтрации воды. Санузел оформлен в светлых тонах, оснащен качественной сантехникой, большим зеркалом с подсветкой, стиральной машиной и бойлером. Окна выходят во двор - без шума дороги и пыли, обеспечивая спокойствие и уют. Дом входит в современный жилой комплекс с круглосуточной охраной, консьержем и закрытой территорией. Для жильцов предусмотрен подземный и гостевой паркинги, на парковке установлен шлагбаум. В доме есть продуктовый магазин, почтомат, несколько кофеен, ресторан-суши, салон красоты, стоматология, barbershop. Территория благоустроена, озеленена, с обустроенными зонами отдыха, тремя детскими площадками и двумя спортивными площадками, в том числе мини-футбольным полем. Жилой комплекс расположен в удобной части города - в 7-9 минутах ходьбы до метро Лукьяновская, рядом с остановками общественного транспорта на ул. Глубочицкой и Соляной, обеспечивающими быстрое сообщение с центром и другими районами. В непосредственной близости расположены магазины "Коло", "Сильпо", "Фора", аптеки, отделение "Новая почта", больница, спортивный зал, школа №101, государственные и частные детские сады. Для прогулок - сквер Гейдара Алиева (30 м), парк Петра Болбочана (300 м), а также исторические улицы Сечевых Стрельцов, Ярославов Вал и Подол с большим количеством ресторанов и кафе.

Дополнительная информация

Похожие предложения