3к квартира пр-т Глушкова Академика 6

  • Голосеевский район пр-т Глушкова Академика 6
  • Код: SF-3-311-731
  • Добавлено: 30.04.2026
  • Добавить в избранное
Тип рынка
Вторичный рынок
Улица
пр-т Глушкова Академика 6
Количество комнат
3
Этаж
23 Этаж
Этажность
24 этажный дом
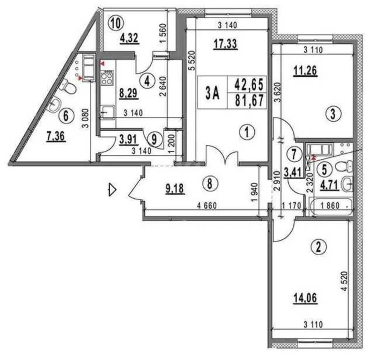
Общая площадь
82 м2
Общее состояние
Без ремонта
Цена:
4 849 056 грн.
110 000 USD
Описание объекта

ЖК «Эврика», 3-комнатная квартира. Квартира с ремонтом от застройщика с раздельной планировкой комнат. Установлены металлопластиковые окна, входная дверь, стяжка, штукатурка, обои под покраску на стенах, два санузла с сантехникой (ванна, раковина, унитаз, смесители), радиаторы отопления, электропроводка разведена, розетки, индивидуальные счетчики отопления/водоснабжения/электроэнергии. Лоджия не застеклена. В соседних квартирах ремонтные работы уже завершены. Дом сдан в эксплуатацию в 2018 году, заселен. Панельный дом утеплен минеральной ватой с вентилируемым фасадом Scanroc. Все необходимые коммуникации подключены, документы оформлены. Есть собственная котельная, автономное отопление. В доме создано ОСМД. Рядом с жилым комплексом парк, озера. Развитая транспортная инфраструктура, школы, детские сады, супермаркеты, больницы, парикмахерские, кафе, рестораны, фитнес-центры, бассейн, стоматологии, аптеки. Каждое воскресенье на соседней улице организуют фермерский рынок. Комплекс ВДНХ и Национальный Голосеевский парк находятся в 15-20 минутах ходьбы, на транспорте можно быстро добраться до Национального музея Пирогово, парка Феофания.

Похожие предложения