Продажа

Все фото (17)
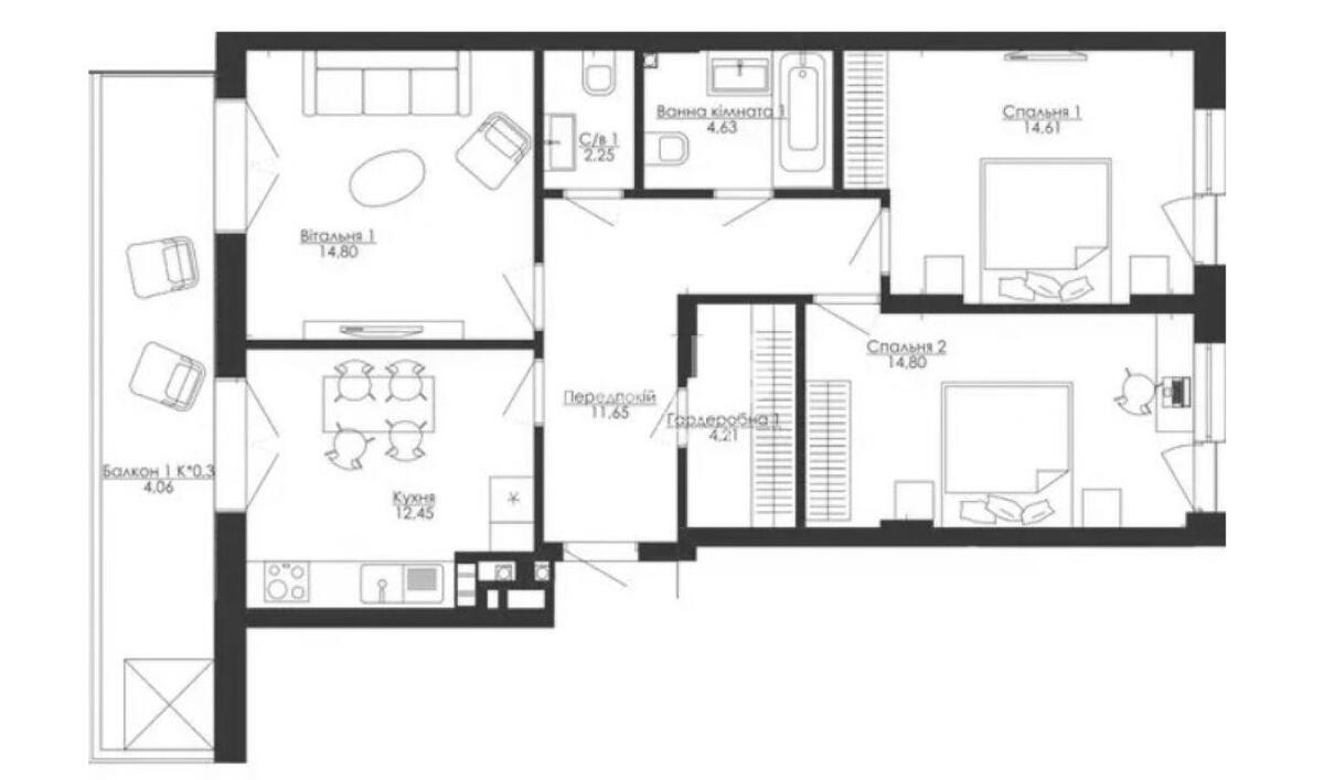
3к квартира ул. Набережно-Рыбальская 3
- Добавить в избранное
-
Поделиться ссылкой
Тип рынка
Первичный рынок
Улица
ул. Набережно-Рыбальская 3
Количество комнат
3
Этаж
7 Этаж
Этажность
9 этажный дом
Общая площадь
85 м2
Общее состояние
С ремонтом
Цена:
9 872 629 грн.
237 000 USD
Описание объекта
ЖК "Rybalsky", 3 комнатная квартира. В прихожей встроенная гардеробная, кухня с выходом на балкон-террасу, гостиная с выходом на балкон-террасу, два санузла (в одном инсталляция, второй с душевой и ванной), техническое помещение в котором расположен водонагревательный бак, стиральная машина и место для хранения вещей, спальня с выходом на балкон.
Дополнительная информация