Продажа

Все фото (11)
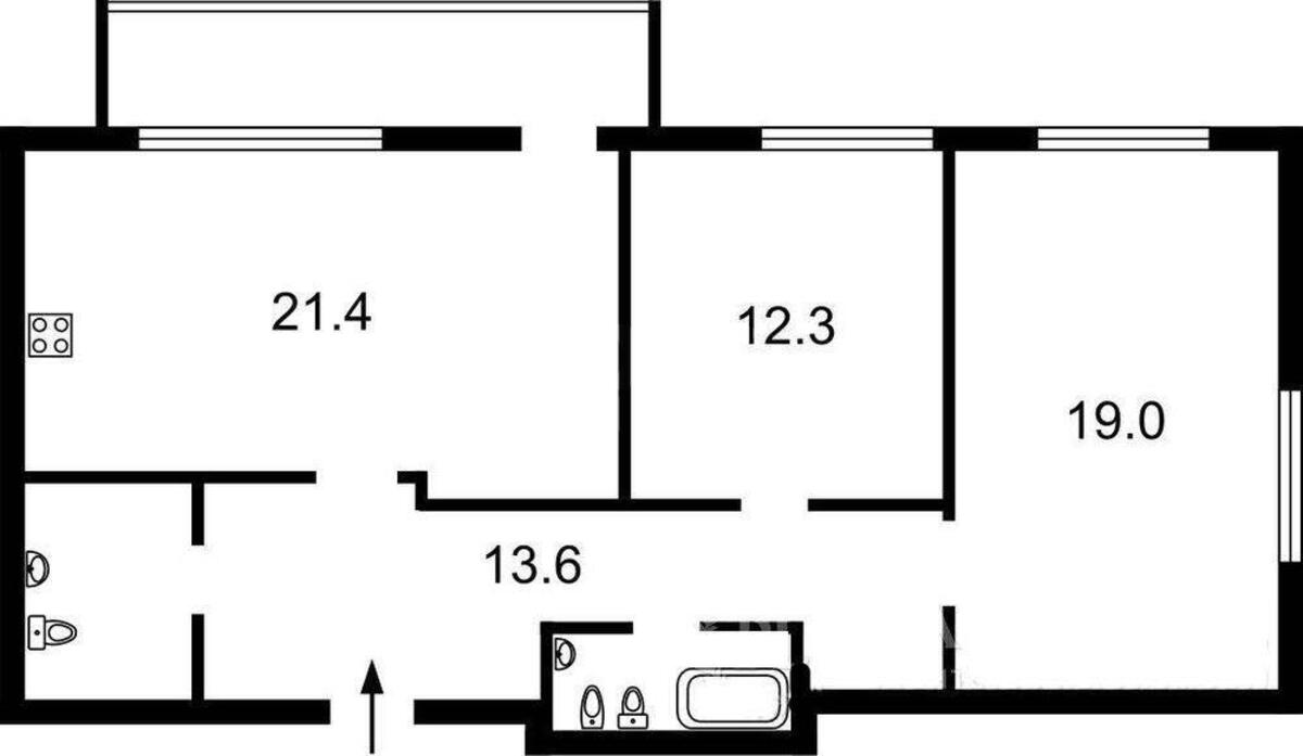
3к квартира бул. Леси Украинки 7
- Добавить в избранное
-
Поделиться ссылкой
Тип рынка
Первичный рынок
Улица
бул. Леси Украинки 7
Количество комнат
3
Этаж
21 Этаж
Этажность
31 этажный дом
Общая площадь
81 м2
Общее состояние
Без ремонта
Цена:
11 659 699 грн.
279 900 USD
Описание объекта
ЖК Jack House, 3 комнатная квартира. Грамотная планировка и отсутствие капитальных стен внутри квартиры, позволяет воплотить любой дизайн проект на ваше усмотрение. ЖК ' Jack House & quot; считается одним из лучших жилых комплексов Киева. Дом находится в деловом и культурном центре города, при этом недалеко расположены правительственные кварталы. Инфраструктура здесь находится на соответствующем уровне.
Дополнительная информация