2к квартира ул. Львовская 15

  • Святошинский район ул. Львовская 15
  • Код: SF-3-239-021
  • Добавлено: 11.11.2025
  • Добавить в избранное
Тип рынка
Первичный рынок
Улица
ул. Львовская 15
Количество комнат
2
Этаж
0 Этаж
Этажность
25 этажный дом
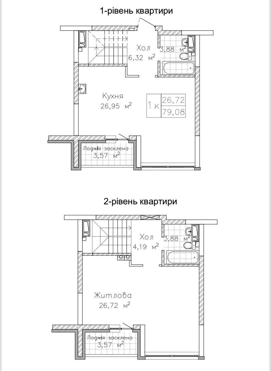
Общая площадь
78 м2
Общее состояние
Без ремонта
Цена:
4 613 451 грн.
110 000 USD
  • AXIS Real Estate
  • AXIS Real Estate
  • AXIS Real Estate
Описание объекта

ЖК Святобор, 2 комнатная квартира. Все окна смотрят во двор. Двор тихий, закрытый от авто и посторонних людей. На первом уровне расположены: санузел, большая кухня-гостевая, балкон и лестница на второй этаж. На втором этаже: две жилые комнаты, балкон, санузел и гардеробная.

Дополнительная информация

Похожие предложения