2к квартира ул. Канальная 8

  • Дарницкий район ул. Канальная 8
  • Код: SF-3-256-632
  • Добавлено: 25.02.2026
  • Добавить в избранное
Тип рынка
Первичный рынок
Улица
ул. Канальная 8
Количество комнат
2
Этаж
15 Этаж
Этажность
24 этажный дом
Общая площадь
65 м2
Общее состояние
Без ремонта
Цена:
4 244 358 грн.
98 000 USD
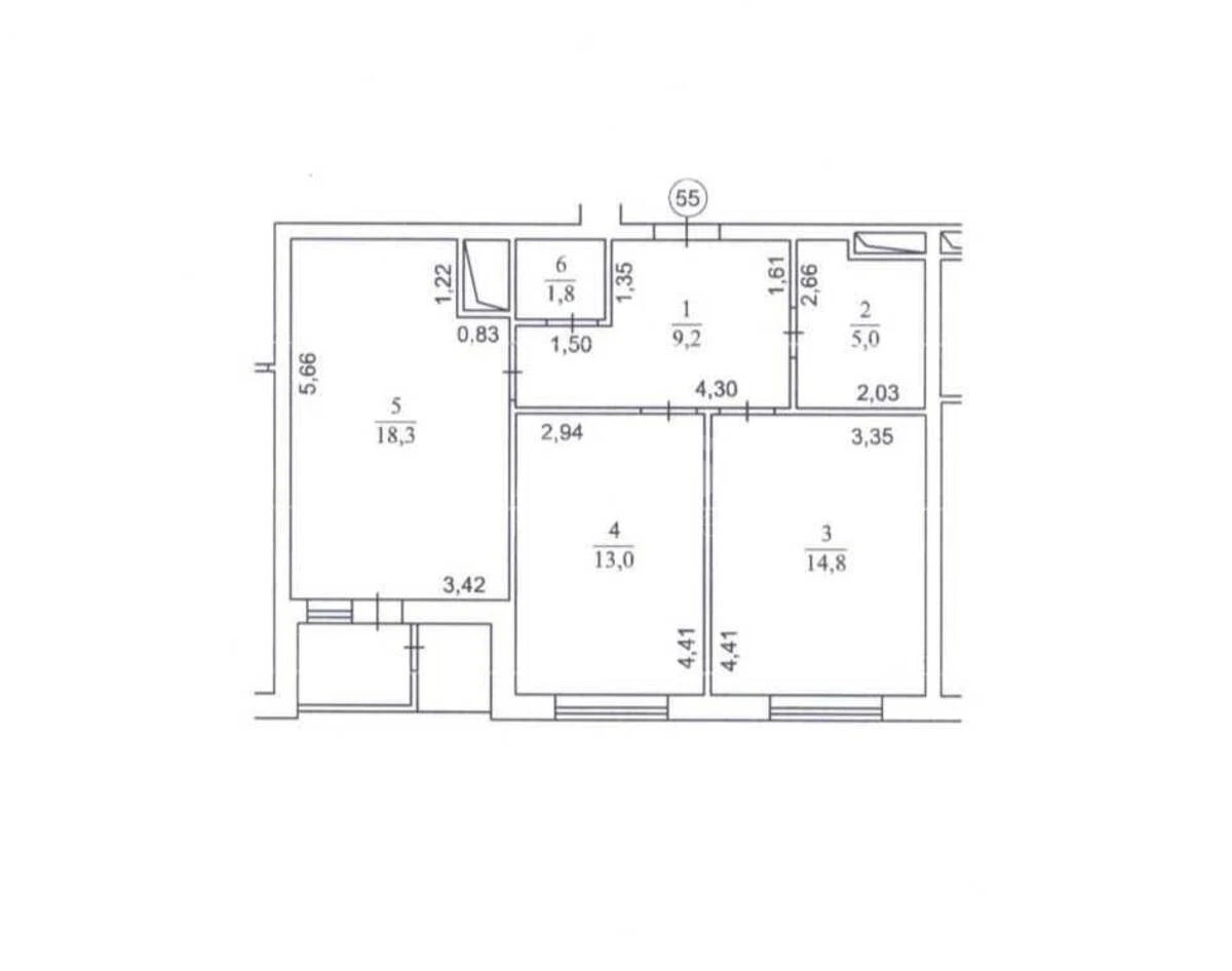
Описание объекта

ЖК Причал 8, 2 комнатная квартира. Состояние - White Box: проведены все коммуникации, установлены радиаторы и счетчики. Пространство готово для чистового ремонта. Планировка: кухня-гостиная около 19 м², две раздельные комнаты (примерно 12-13 м²), лоджия с выходом из кухни, ванная комната и отдельный гостевой санузел, высота потолков - 2,7 м.

Похожие предложения