2к квартира ул. Евгения Коновальца 30

  • Печерский район ул. Евгения Коновальца 30
  • Код: SF-3-249-410
  • Добавлено: 25.02.2026
  • Добавить в избранное
Тип рынка
Первичный рынок
Улица
ул. Евгения Коновальца 30
Количество комнат
2
Этаж
10 Этаж
Этажность
26 этажный дом
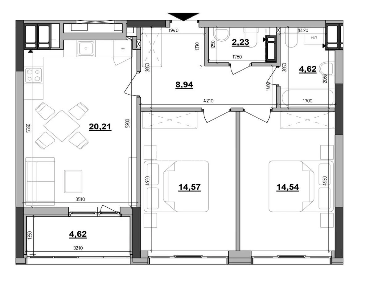
Общая площадь
70 м2
Общее состояние
Без ремонта
Цена:
6 496 467 грн.
150 000 USD
Описание объекта

ЖК MAXIMA RESIDENCE, 2 комнатная квартира. Продам квартиру 70 м2 (2 спальни по 15 м2 + кухня-гостиная 20 м2) на 10 этаже в 1 секции (ввод в эксплуатацию июнь 2026 года), что находится на живописных холмах Печерска в жк бизнес-класса Maxima Residence по адресу Евгения Коновальца, 30 (Щорса), рядом метро Печерская и Дворец Украина. В доме есть гостевой паркинг и непосредственно паркинг в доме.

Похожие предложения