2к квартира ул. Бережанская 15

  • Оболонский район ул. Бережанская 15
  • Код: SF-3-288-089
  • Добавлено: 21.04.2026
  • Добавить в избранное
Тип рынка
Первичный рынок
Улица
ул. Бережанская 15
Количество комнат
2
Этаж
5 Этаж
Этажность
25 этажный дом
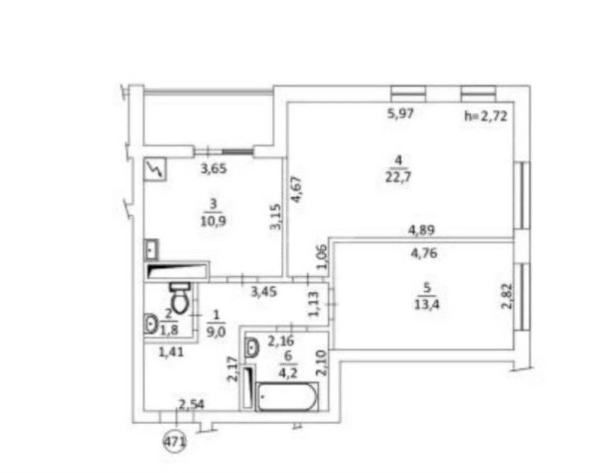
Общая площадь
67 м2
Общее состояние
Без ремонта
Цена:
2 462 410 грн.
56 000 USD
Описание объекта

ЖК Бережанський, 2 кімнатна квартира. Окремі кімнати, кухня 11 кв.м. Стан після будівельників, стяжка підлоги, штукатурка, лічильники на воду, світло, тепло, радіатори опалення. Можливе придбання паркомісця у підземному паркуванні на території комплексу. 3 ліфти.

Похожие предложения