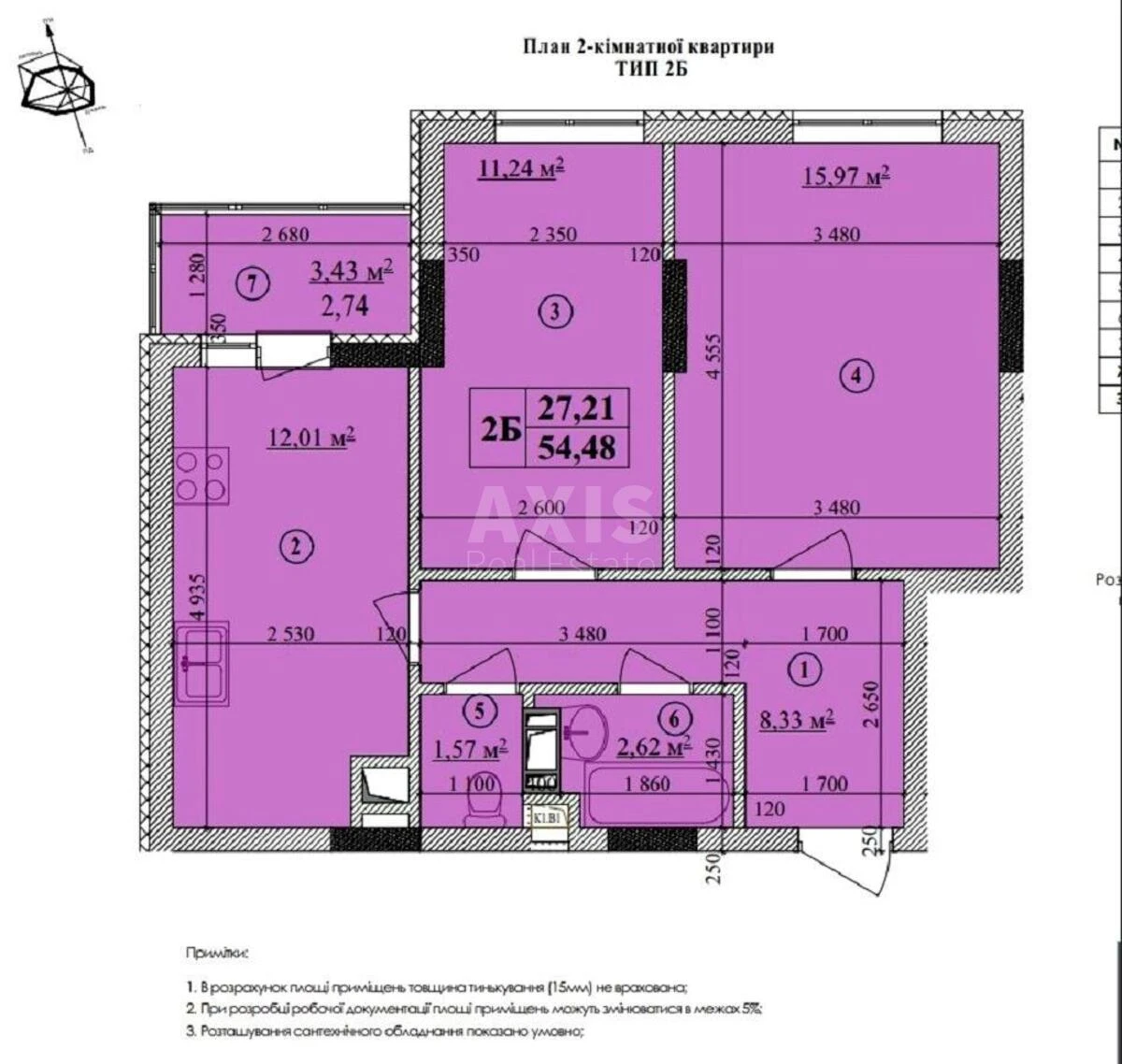
2к квартира ул. Августина Волошина 32А

  • Соломенский район ул. Августина Волошина 32А
  • Код: SF-3-310-772
  • Добавлено: 28.04.2026
  • Добавить в избранное
Тип рынка
Вторичный рынок
Улица
ул. Августина Волошина 32А
Количество комнат
2
Этаж
2 Этаж
Этажность
7 этажный дом
Общая площадь
55 м2
Общее состояние
Без ремонта
Цена:
3 396 708 грн.
77 280 USD
Описание объекта

2-комнатная квартира. Устанавливается индивидуальная система отопления, работающая от итальянского двухконтурного газового котла «Феролли»; есть возможность установить твердотопливный котел и солнечные панели. Придомовая территория закрыта от посторонних и круглосуточно охраняется. Оборудована детская площадка и комфортабельная зона отдыха под навесом, защищенная от непогоды. Имеется гостевая парковка.

Похожие предложения