2к квартира шоссе Надднепрянское 2А

  • Голосеевский район шоссе Надднепрянское 2А
  • Код: RF-3-193-587
  • Добавлено: 22.08.2025
  • Добавить в избранное
Тип рынка
Вторичный рынок
Улица
шоссе Надднепрянское 2А
Количество комнат
2
Этаж
6 Этаж
Этажность
26 этажный дом
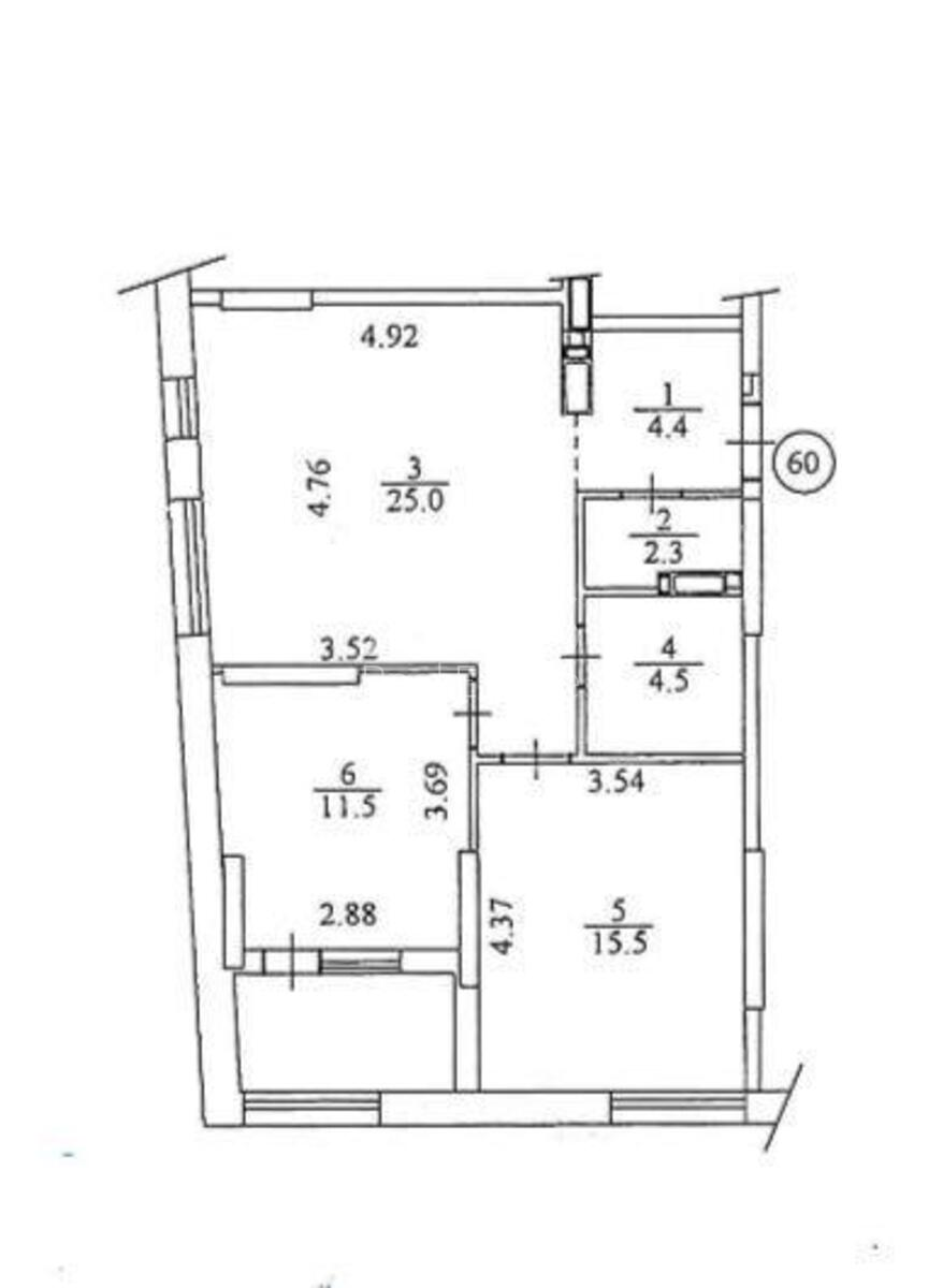
Общая площадь
67 м2
Общее состояние
С ремонтом
Цена:
41 940 грн.
1 000 USD
  • AXIS Real Estate
  • AXIS Real Estate
  • AXIS Real Estate
Описание объекта

ЖК Svitlo Park, 2 комнатная квартира. С видом на Днепр создает ощущение простора и свободы, которое ежедневно дарит набережная Оболони. Дизайнерский ремонт в сочетании с современной мебелью и качественной техникой подчеркивает стиль и практичность. Продуманная планировка с отдельными комнатами, двумя санузлами и собственной сауной добавляет комфорта и особого уюта. Жилой комплекс у воды отличается гармоничной концепцией: свободный доступ на территорию, продуманное озеленение, обустроенные места для отдыха. Для безопасности установлен домофон, а для удобства жильцов предусмотрены подземный, наземный и многоуровневый паркинг с охраной. Для гостей всегда доступна наземная парковка. Набережная, парк Наталка, яхт-клуб и гольф-клуб находятся совсем рядом, открывая возможности для активного отдыха и прогулок. Это место, где современная городская жизнь гармонично сочетается с близостью природы и атмосферой отдыха.

Дополнительная информация