2к квартира пр-т Европейского Союза 83

  • Подольский район пр-т Европейского Союза 83
  • Код: SF-3-249-755
  • Добавлено: 17.02.2026
  • Добавить в избранное
Тип рынка
Первичный рынок
Улица
пр-т Европейского Союза 83
Количество комнат
2
Этаж
2 Этаж
Этажность
26 этажный дом
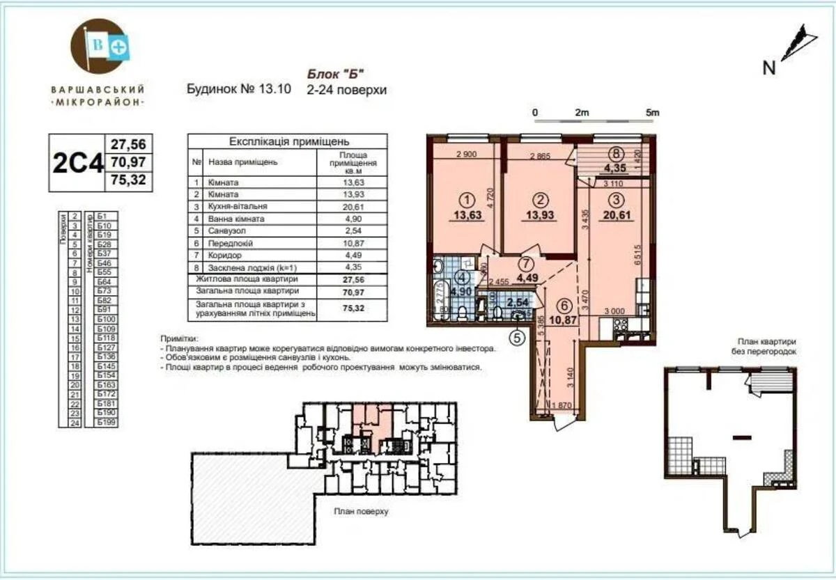
Общая площадь
75 м2
Общее состояние
Без ремонта
Цена:
4 094 850 грн.
95 000 USD
Описание объекта

ЖК Варшавский Плюс, 2 комнатная квартира. Дом 13.10 введен в эксплуатацию. 2 этаж из 24. Состояние после строителей. На полу лазерная стяжка, проведены каналы под электропроводку, пожарная сигнализация, счетчики на холодную, горячую воду, электроэнергию, входные металлические, противопожарные двери, металлопластиковые окна Rehau с двухкамерным стеклопакетом. Установлено и подключено генератор на дом.

Похожие предложения