2к квартира пр-т Владимира Ивасюка 2Г

  • Оболонский район пр-т Владимира Ивасюка 2Г
  • Код: SF-3-243-430
  • Добавлено: 20.11.2025
  • Добавить в избранное
Тип рынка
Первичный рынок
Улица
пр-т Владимира Ивасюка 2Г
Количество комнат
2
Этаж
5 Этаж
Этажность
9 этажный дом
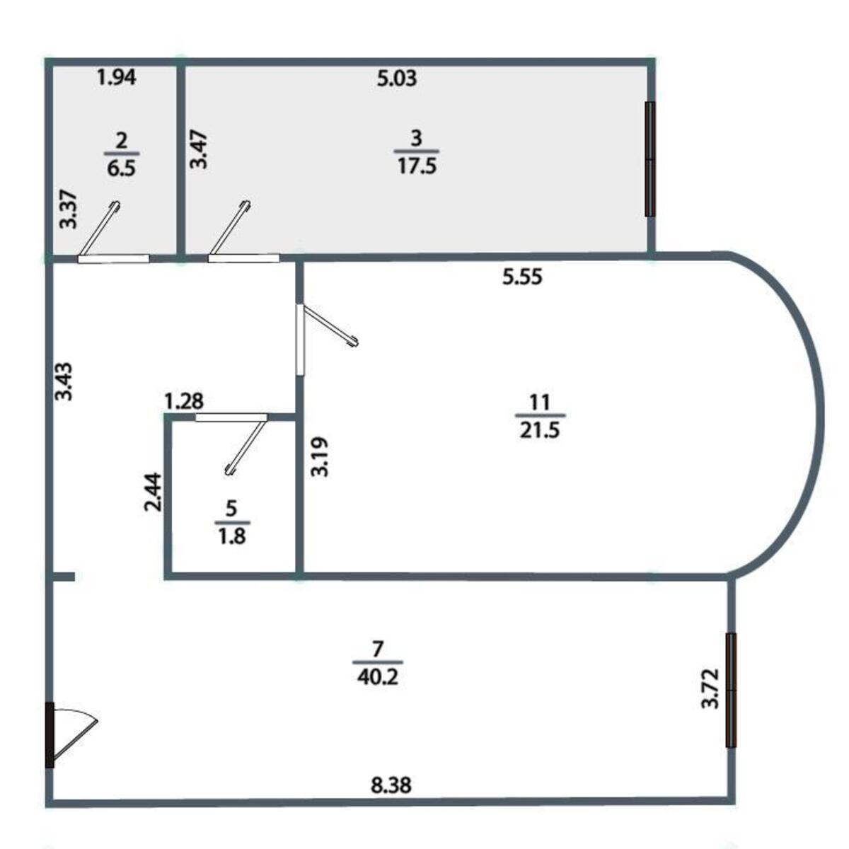
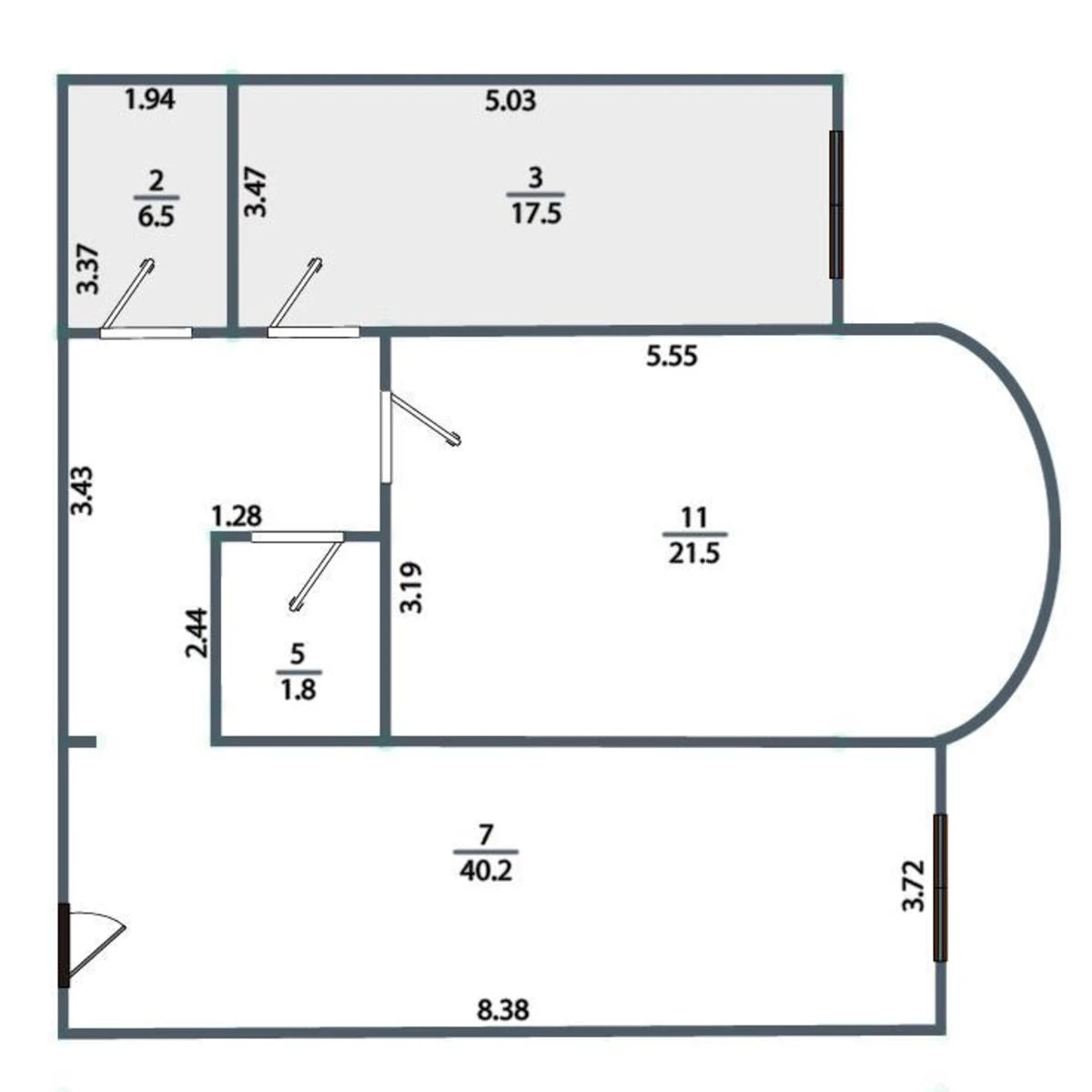
Общая площадь
88 м2
Общее состояние
С ремонтом
Цена:
8 205 367 грн.
195 000 USD
  • AXIS Real Estate
  • AXIS Real Estate
  • AXIS Real Estate
Описание объекта

ЖК "Оазис", 2 комнатная квартира. Тихий, уютный и ухоженный двор. Квартира расположена на комфортном 5-м этаже. В квартире выполнен ремонт. Также квартира полностью оборудована необходимой мебелью и техникой. Много места для хранения вещей. Комфортная планировка: просторная гостиная, отдельная спальня, просторная кухня, санузел и отдельная кладовая. Хорошо развита инфраструктура района: рядом находятся супермаркеты, рестораны, школы и детские сады, зоны отдыха.

Дополнительная информация

Похожие предложения