Аренда

Все фото (14)
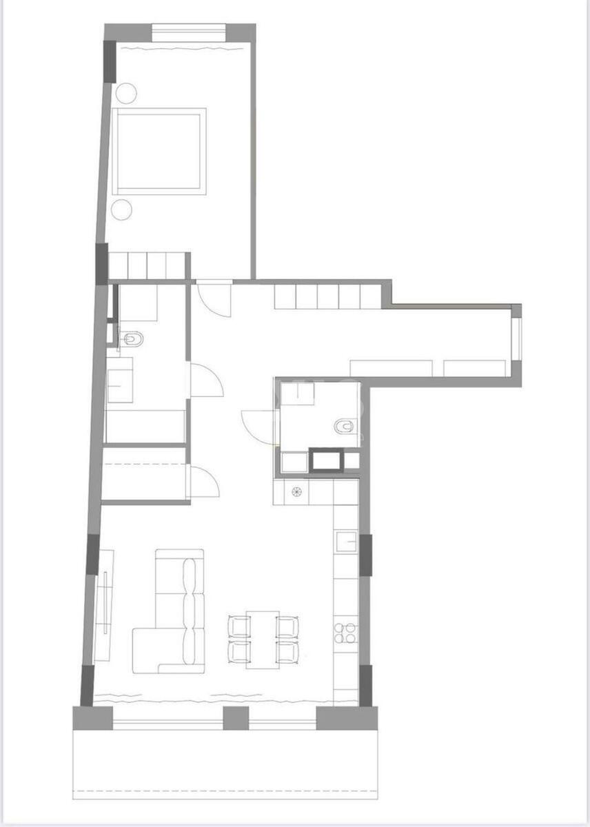
2к квартира пр-т Победы 42
- Добавить в избранное
-
Поделиться ссылкой
Тип рынка
Первичный рынок
Улица
пр-т Победы 42
Количество комнат
2
Этаж
3 Этаж
Этажность
10 этажный дом
Общая площадь
95 м2
Общее состояние
С ремонтом
Цена:
66 627 грн.
1 600 USD
Описание объекта
ЖК Crystal Park, 2 комнатная квартира. Планировка: большая кухня гостиная с балконом с видом на парк и одна спальня на сторону студии Довженко. 2 санузла, один из них с ванной и большой душевой кабиной. Вся техника и мебель высокого уровня. Установлен фильтр для воды обратного осмоса. Есть телевизоры в гостиной и спальне. Оплата по счетчикам.
Дополнительная информация