1к квартира ул. Шелковичная 23

  • Печерский район ул. Шелковичная 23
  • Код: SF-3-300-439
  • Добавлено: 31.05.2026
  • Добавить в избранное
Тип рынка
Вторичный рынок
Улица
ул. Шелковичная 23
Количество комнат
1
Этаж
4 Этаж
Этажность
5 этажный дом
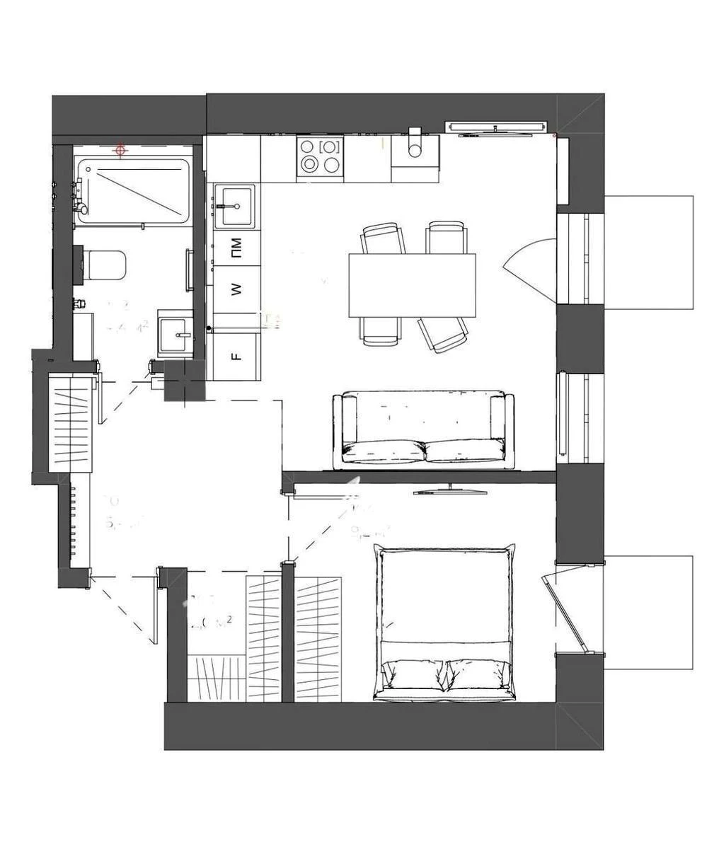
Общая площадь
42 м2
Общее состояние
С ремонтом
Цена:
7 970 367 грн.
180 000 USD
Описание объекта

1-комнатная квартира. Квартира после капитального ремонта, с заменой всех старых коммуникаций на новые + качественно выполненная электропроводка. Видеонаблюдение, домофон, интернет. Имеется система бесключевого доступа в квартиру. Окна Rehau, межкомнатные двери Rodos. Два балкона с видом во двор. Рядом Кловский лицей. На этаже всего по 2 квартиры. Теплый пол в санузле. В квартире есть вся необходимая мебель и бытовая техника от ведущих производителей. Все новое, в квартире еще никто не жил.

Похожие предложения