1к квартира ул. Метрологическая 107

  • Голосеевский район ул. Метрологическая 107
  • Код: SF-3-243-178
  • Добавлено: 20.11.2025
  • Добавить в избранное
Тип рынка
Первичный рынок
Улица
ул. Метрологическая 107
Количество комнат
1
Этаж
3 Этаж
Этажность
9 этажный дом
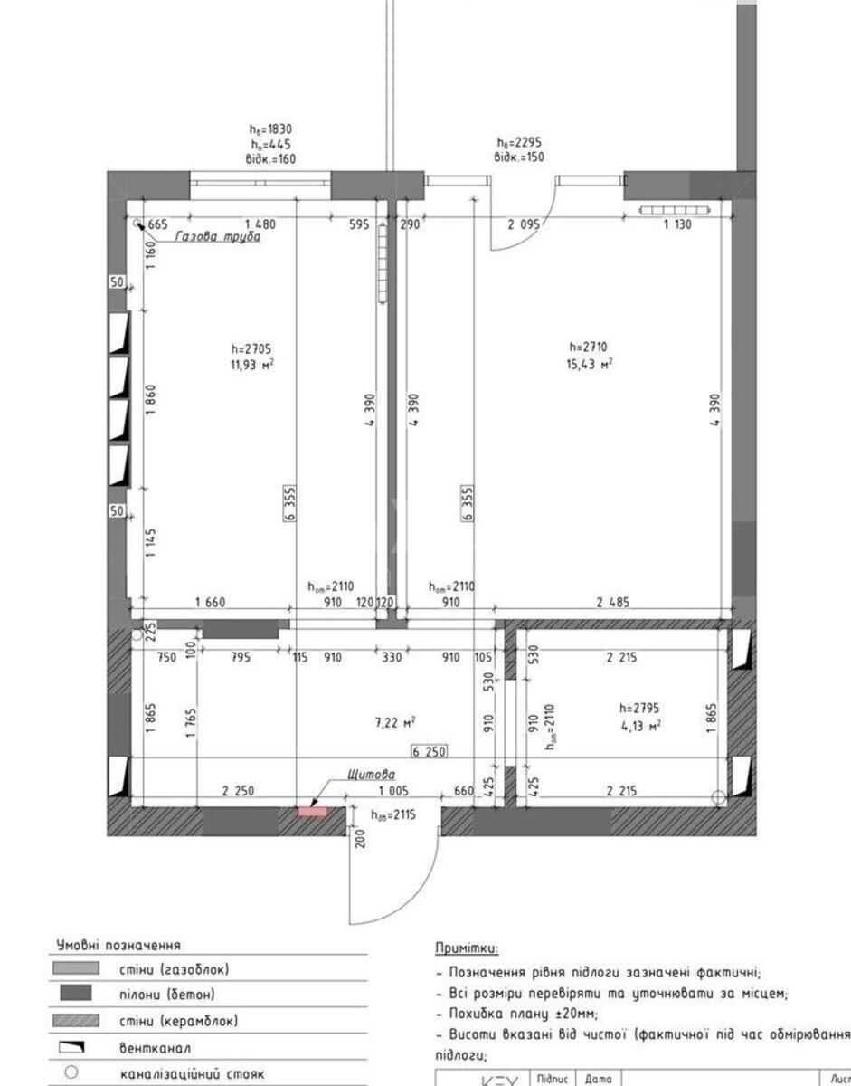
Общая площадь
40 м2
Общее состояние
Без ремонта
Цена:
2 440 570 грн.
58 000 USD
  • AXIS Real Estate
  • AXIS Real Estate
  • AXIS Real Estate
Описание объекта

ЖК Кришталеві джерела, 1 комнатная квартира. Находится в состоянии от строителей, что дает возможность будущему владельцу реализовать любые дизайнерские решения под собственный стиль и потребности. Помещение просторное, правильной планировки, с большими окнами и достаточным количеством света. Санузел подготовлен под монтаж оборудования, предусмотрены все необходимые коммуникации. Дом возведен по монолитно-каркасной технологии с использованием керамического кирпича и газосиликатного блока. Стены утеплены минеральной ватой, пенопластом и базальтовой ватой, что обеспечивает комфортную температуру зимой и летом. В доме предусмотрены различные варианты отопления - централизованное, индивидуальное и автономная котельная. Водоснабжение централизованное. Концепция самого комплекса построена по принципу "город в городе": в доме есть кладовые помещения, а прямо на территории расположены торговый центр, детсад, школа, различные кружки, кафе, рестораны, магазины, аптеки, медицинский кабинет, салон красоты и другие объекты ежедневной необходимости. Доступ к дому осуществляется через охраняемые КПП, территория ограждена, работает электронно-карточная система и шлагбаумы. Безопасность усилена видеонаблюдением по всей территории и в доме, домофоном и кодовыми замками. Отдельное внимание уделено озеленению: ландшафтный дизайн, газоны, клумбы, сквер, пешеходные аллеи, зона автополива и даже небольшие декоративные элементы вроде альпийской горки. Для жильцов предусмотрены зоны отдыха, фонтан и покрытие Wi-Fi. Территория комплекса полностью закрытая и ухоженная, с наземной парковкой как для жильцов, так и для гостей. На парковке есть видеонаблюдение, шлагбаум и даже электрозаправка. Для детей оборудована игровая площадка, а для взрослых - спортивная зона с воркаут-оборудованием и теннисными столами. Все ключевые объекты расположены рядом: парк Феофания, Голосеевский лес, Национальный комплекс "Экспоцентр Украины" (ВДНХ) и урочище Теремки, что делает комплекс отличным местом для жизни среди природы в черте города.

Дополнительная информация

Похожие предложения