1к квартира ул. Бережанская 15

  • Оболонский район ул. Бережанская 15
  • Код: SF-3-288-054
  • Добавлено: 21.04.2026
  • Добавить в избранное
Тип рынка
Первичный рынок
Улица
ул. Бережанская 15
Количество комнат
1
Этаж
4 Этаж
Этажность
25 этажный дом
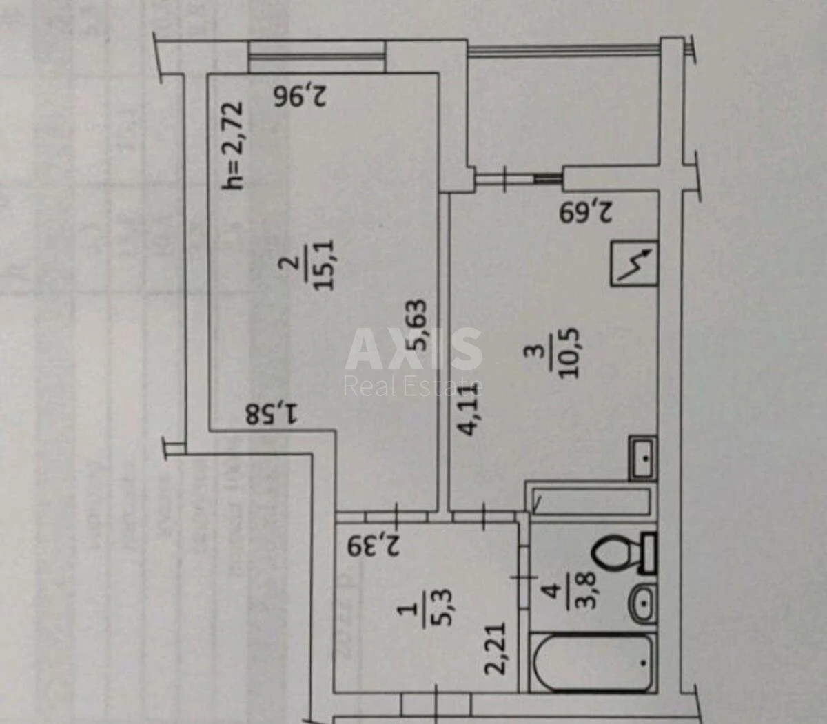
Общая площадь
39 м2
Общее состояние
Без ремонта
Цена:
1 539 006 грн.
35 000 USD
Описание объекта

ЖК Бережанський, 1 кімнатна квартира. Окремі кімнати, кухня 10,5кв.м. Стан після будівельників, стяжка підлоги, штукатурка, лічильники на воду, світло, тепло, радіатори опалення. Можливе придбання паркомісця у підземному паркуванні на території комплексу. Закрита територія. 3 ліфти. З квартири відкривається вид на затишний двір. Будинок із цегляними стінами, виконаний за монолітно-каркасною технологією. Зовнішні стінки утеплені мінеральною ватою.

Похожие предложения