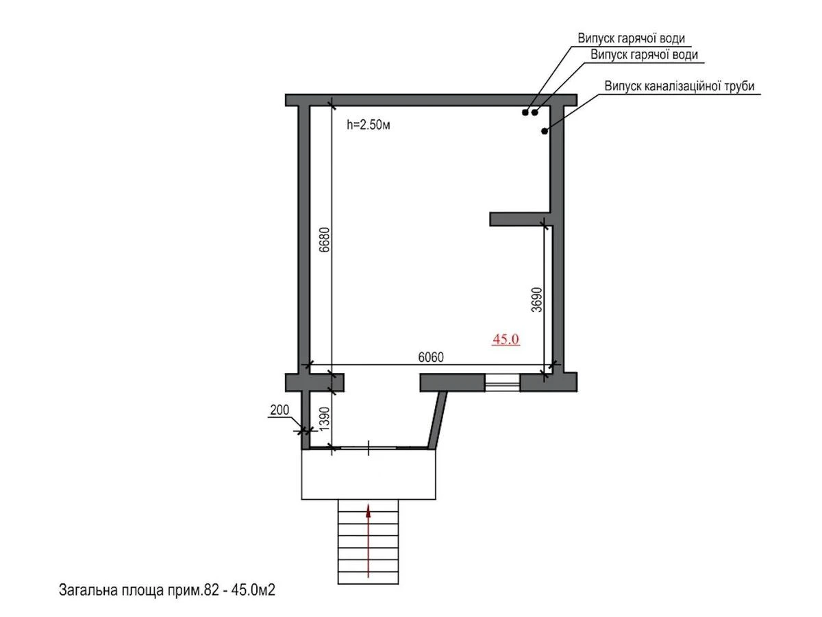
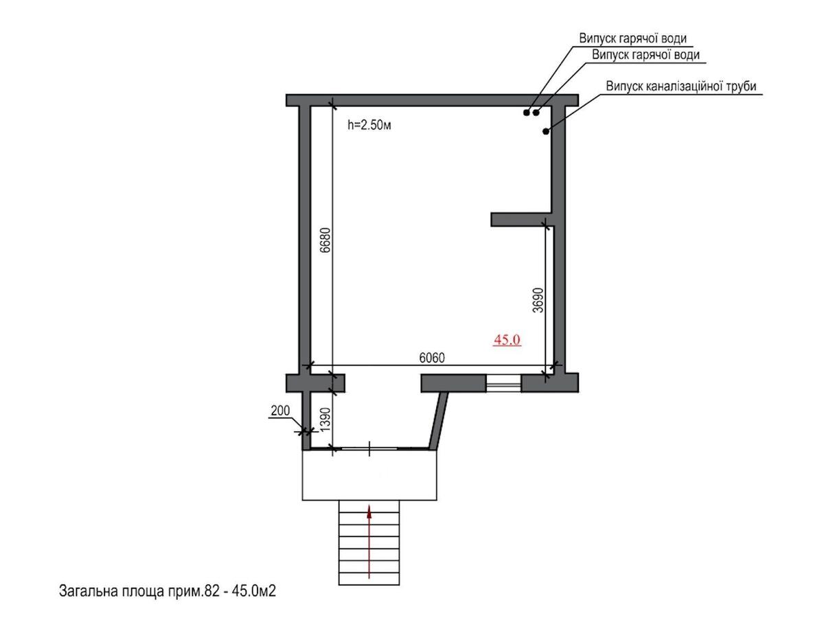
Об'єкт торгівлі вул. Драгоманова 20, 45м2

  • Дарницький район вул. Драгоманова 20
  • Код: SC-217-157
  • Добавлено: 28.10.2025
  • Додати в обране
Тип ринку
Вторинний ринок
Вулиця
вул. Драгоманова 20
Назначение
Торгове приміщення
Поверх
1 Поверх
Поверховість
9 поверховий будинок
Загальна площа
45 м2
Загальний стан
З ремонтом
Ціна:
6 103 040 грн.
145 000 USD
  • AXIS Real Estate
  • AXIS Real Estate
  • AXIS Real Estate
Опис об'єкту

Приміщення вільного призначення. На даний момент приміщення орендоване великою мережею медичних лабораторій NikoLab, яка налічує понад 50 лабораторій по всій Україні. Це додає впевненості у надійності та довгостроковості орендних відносин. У цьому ж будинку працюють магазин Hop Hey, відділення Нова Пошта, аптека Віталюкс та відділення банку Укрсиббанк. Така концентрація сервісів створює додатковий потік відвідувачів і підсилює комерційну привабливість локації.

Додаткова інформація

Схожі пропозиції