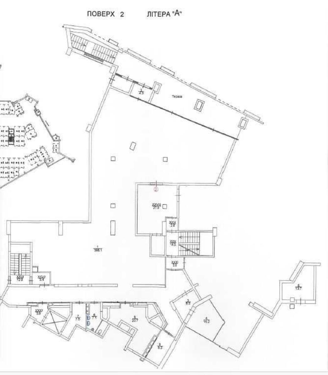
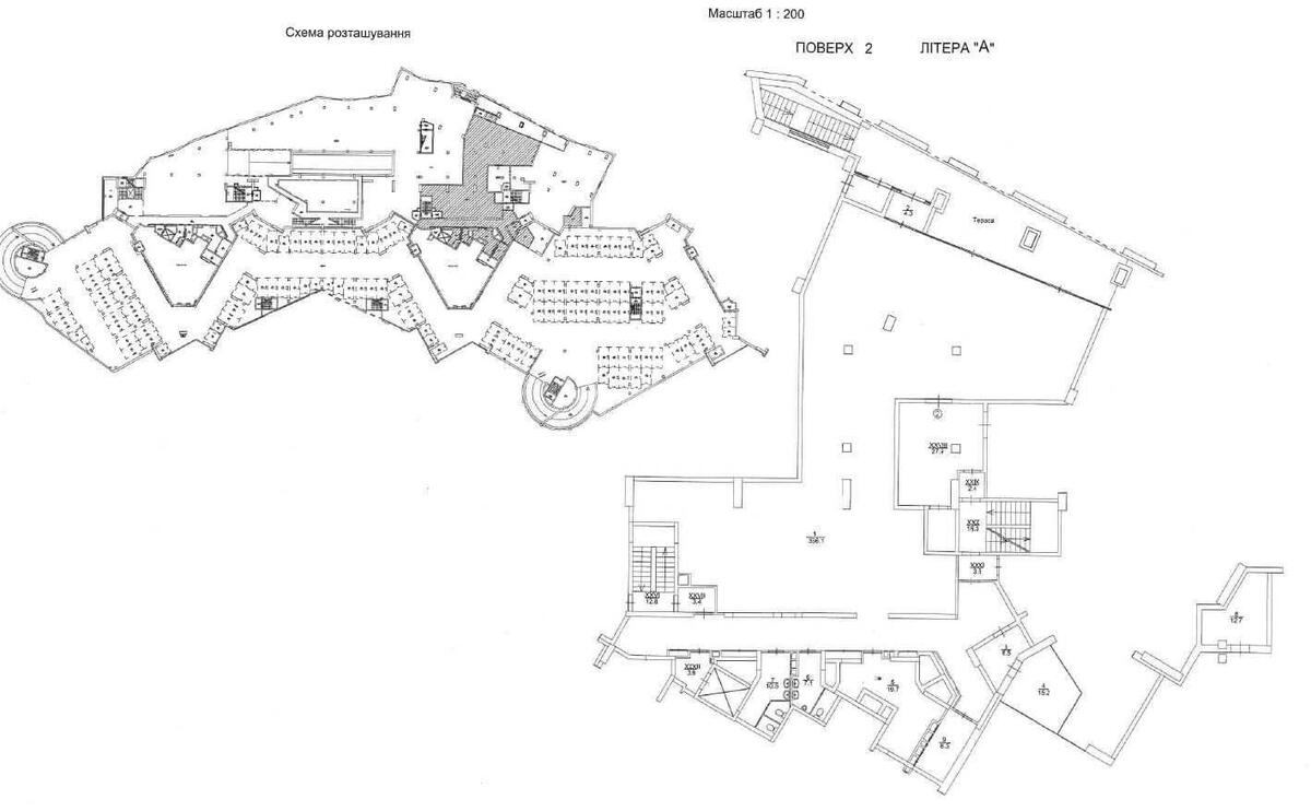
Об'єкт сервісу пр-т Берестейський 11, 450м2

  • Шевченківський район пр-т Берестейський 11
  • Код: RC-218-218
  • Добавлено: 21.11.2025
  • Додати в обране
Тип ринку
Вторинний ринок
Вулиця
пр-т Берестейський 11
Назначение
Сервісний об'єкт
Поверх
2 Поверх
Поверховість
36 поверховий будинок
Загальна площа
450 м2
Загальний стан
Без ремонту
Ціна:
246 546 грн.
5 850 USD
  • AXIS Real Estate
  • AXIS Real Estate
  • AXIS Real Estate
Опис об'єкту

ЖК Manhattan City, приміщення вільного призначення. Стан — без ремонту (shell & core). Приміщення має фасадний вхід, великі панорамні вікна та можливість вільного планування. Ідеально підходить під фітнес-клуб, медичний центр, офіс open-space, шоурум, магазин, ресторан або салон краси. Висота стелі — 4,5 м. Електропотужність — 150 кВт. Можливість зонування. Вентиляційні канали, можливість встановлення кондиціонування. Цілодобовий доступ, охорона, відеоспостереження.

Додаткова інформація

Схожі пропозиції