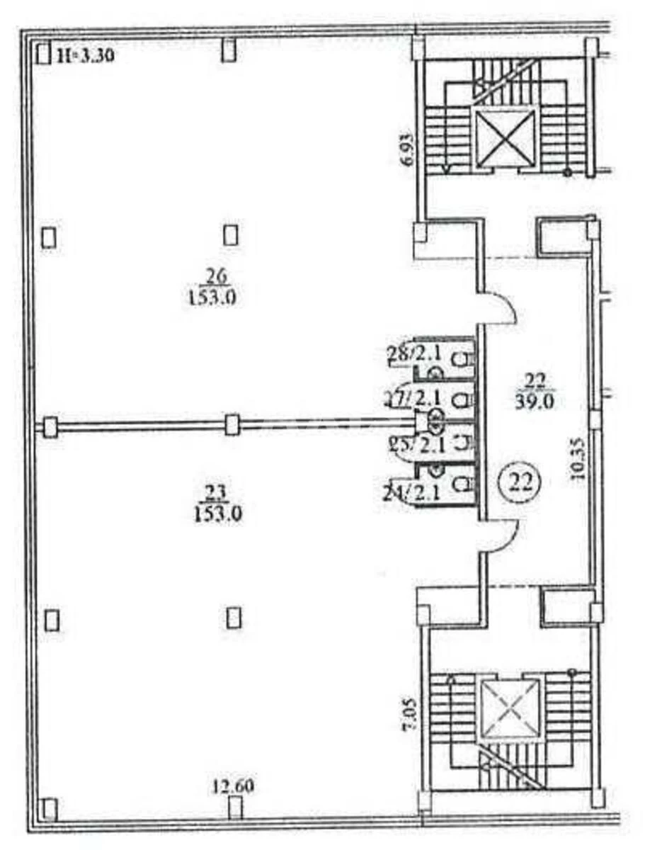
Офіс вул. Північно-Сирецька 1/3, 360м2

  • Подільський район вул. Віктора Некрасова 1/3
  • Код: RC-210-049
  • Добавлено: 21.05.2025
  • Додати в обране
Тип ринку
Вторинний ринок
Вулиця
вул. Віктора Некрасова 1/3
Назначение
Офісне приміщення
Поверх
5 Поверх
Поверховість
7 поверховий будинок
Загальна площа
360 м2
Загальний стан
Без ремонту
Ціна:
181 806 грн.
4 300 USD
  • AXIS Real Estate
  • AXIS Real Estate
  • AXIS Real Estate
Опис об'єкту

Офісне приміщення. Універсальне нежитлове приміщення загальною площею 720 кв.м. (360 кв.м. – 3 поверх + 360 кв.м. – 5 поверх). Здається разом або окремо. Поверх 360 (кв.м.) можна поділити на дві частини по 180 кв.м. Приміщення мають відкрите планування з чорновим оздобленням стін, підлоги, стелі. Під клініку, офіс, спотр зал і тд.

Додаткова інформація

Схожі пропозиції