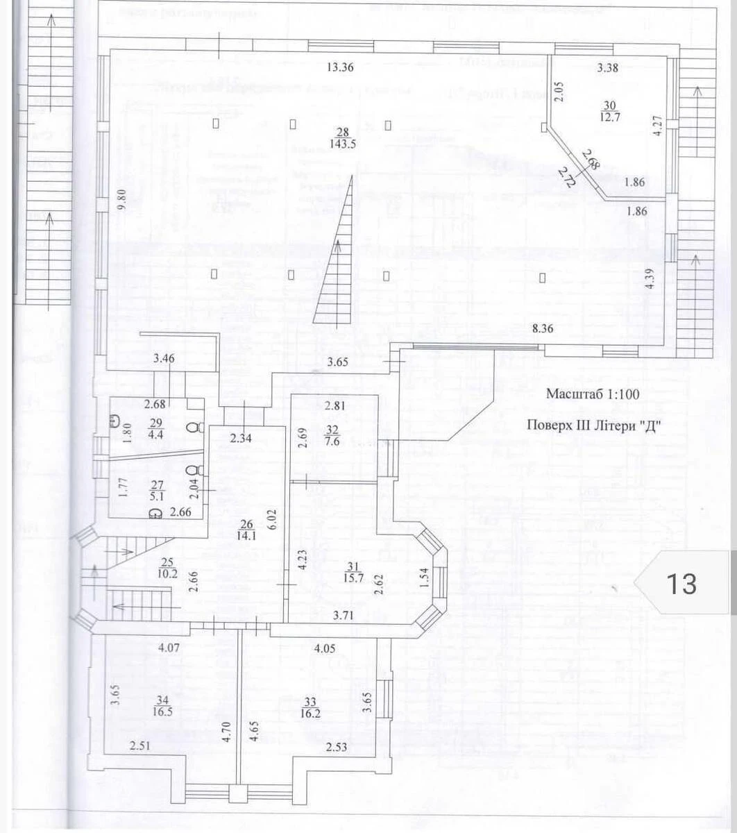
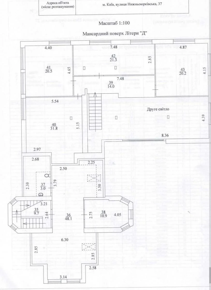
Офіс вул. Нижньоюрківська 37, 745м2

  • Подільський район вул. Нижньоюрківська 37
  • Код: RC-219-420
  • Добавлено: 25.02.2026
  • Додати в обране
Тип ринку
Вторинний ринок
Вулиця
вул. Нижньоюрківська 37
Назначение
Офісне приміщення
Поверх
1 Поверх
Поверховість
4 поверховий будинок
Загальна площа
745 м2
Загальний стан
З ремонтом
Ціна:
223 650 грн.
5 163 USD
Опис об'єкту

Офісне приміщення. Багато кабінетів різних розмірів. Ідеальна пропозиція для розміщення офісу, медичного чи навчального центру, шоуруму, клініки, фітнес-студії, складу з офісом або іншої комерційної діяльності. Охорона, відео нагляд. Зручне планування. ст м Т.Шевченка поруч, 10-15хвилин. Автономне живлення при відключені світла. Окремий вхід. Паркінг. Комунікації підведені. Високий пішохідний та автомобільний трафік.

Схожі пропозиції