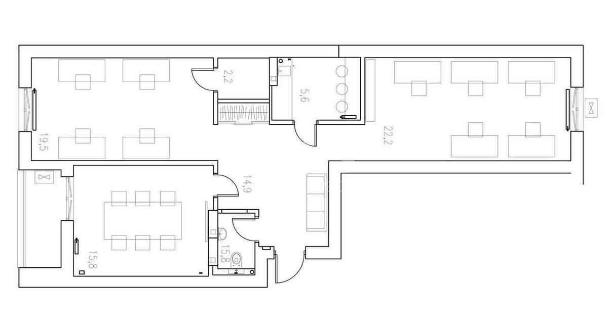
Офіс вул. Дегтярна 29, 85м2

  • Оболонський район вул. Дегтярна 29
  • Код: RC-218-940
  • Добавлено: 07.12.2025
  • Додати в обране
Тип ринку
Вторинний ринок
Вулиця
вул. Дегтярна 29
Назначение
Офісне приміщення
Поверх
2 Поверх
Поверховість
8 поверховий будинок
Загальна площа
85 м2
Загальний стан
З ремонтом
Ціна:
55 000 грн.
1 304 USD
Опис об'єкту

ЖК Подол Град, офісне приміщення. Сучасне світле офісне приміщення з якісним ремонтом в стилі лофт, виконаним в світлих кольорах. Розташоване на другому поверсі 8-поверхового будинку. Кожен з кабінетів та переговорна офісу обладнані кондиціонерами. В холі наявна велика шафа для верхнього одягу та інших речей. В офіс заведено оптоволоконний інтернет. На території ЖК, в 1 хв ходи від офісу, розміщено паркінг, що також слугує укриттям.

Схожі пропозиції