Оренда

Усі фото (8)
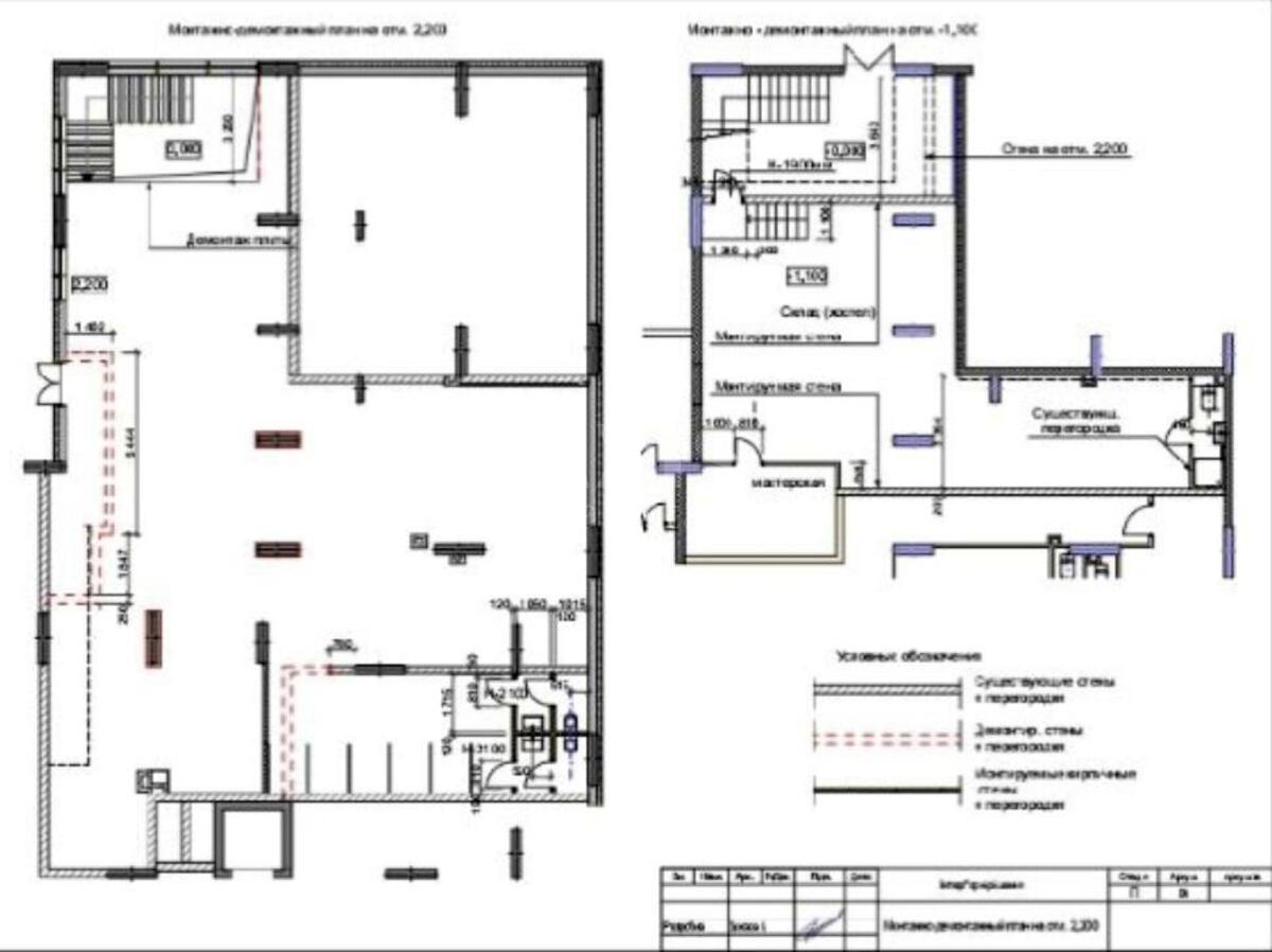
Офіс вул. Центральна 21Б, 380м2
- Додати в обране
-
Подiлитись посиланням
Тип ринку
Вторинний ринок
Вулиця
вул. Центральна 21Б
Назначение
Офісне приміщення
Поверх
1 Поверх
Поверховість
10 поверховий будинок
Загальна площа
380 м2
Загальний стан
З ремонтом
Ціна:
148 200 грн.
3 587 USD
Опис об'єкту
Приміщення вільного призначення. Під любий вид діяльності. Ідеально підійде під магазин, офіс, медичний або косметологічний центр, Салон краси, шоуруму, страхової, юридичної або туристичної компанії в ЖК «Рів’єра» на 1 поверсі по вул. Центральна, 21, станція метро Славутич, 3 хвилини пішки.
Додаткова інформація