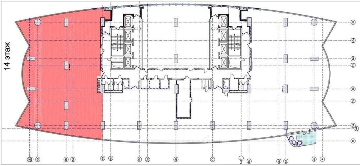
Офіс пл. Спортивна 1А, 446м2

  • Печерський район пл. Спортивна 1А
  • Код: RC-209-782
  • Добавлено: 24.02.2026
  • Додати в обране
Тип ринку
Вторинний ринок
Вулиця
пл. Спортивна 1А
Назначение
Офісне приміщення
Поверх
14 Поверх
Поверховість
33 поверховий будинок
Загальна площа
446 м2
Загальний стан
З ремонтом
Ціна:
817 977 грн.
18 900 USD
Опис об'єкту

Офісне приміщення. Високі стелі (3,6 м) та вражаючий панорамний вид з вікон додають особливої атмосфери вашому офісу. Безпека об'єкта забезпечена сучасними системами охорони, сигналізації та відеоспостереження, а також 24/7 охороною. Бізнес-центр 'Гуллівер' обладнаний системами димовидалення, пожежогасіння від провідних міжнародних виробників, власною підстанцією для енергопостачання та потужними генераторами на випадок відключення електроенергії.

Схожі пропозиції