5к квартира вул. Січових Стрільців 52А

  • Шевченківський район вул. Січових Стрільців 52А
  • Код: SF-3-208-795
  • Добавлено: 17.09.2025
  • Додати в обране
Тип ринку
Вторинний ринок
Вулиця
вул. Січових Стрільців 52А
Кількість кімнат
5
Поверх
19 Поверх
Поверховість
20 поверховий будинок
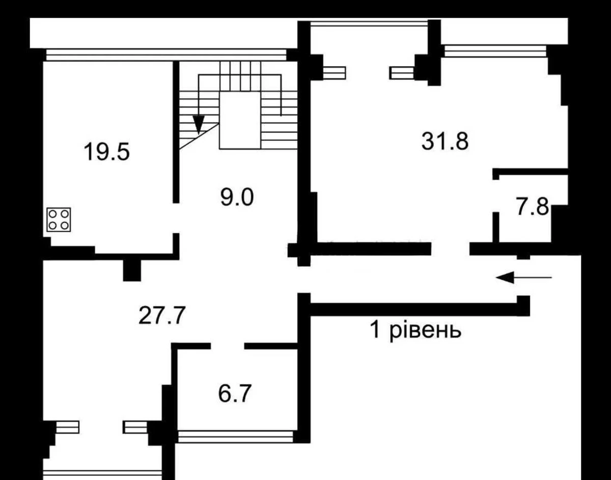
Загальна площа
256 м2
Загальний стан
Без ремонту
Ціна:
12 382 366 грн.
295 000 USD
  • AXIS Real Estate
  • AXIS Real Estate
  • AXIS Real Estate
Опис об'єкту

5 кімнатна квартира. Дворівневий пентхаус загальною площею 256 м² знаходиться на 19-20 поверхах. Стан об`єкту: після будівельників. Функціональне двостороннє планування, стеля 2.9 метра. Чудові панорамні характеристики. Можливий подальший розподіл на 2 окремі квартири. Підземний паркінг, охорона, консьєрж, гарний стан, затишно, зелено, під'їзди охайні, поруч Львівська площа, Пейзажна алея, Андріївський узвіз, супермаркети.

Додаткова інформація

Схожі пропозиції