
5к квартира вул. Антоновича 14
- Додати в обране
-
Подiлитись посиланням
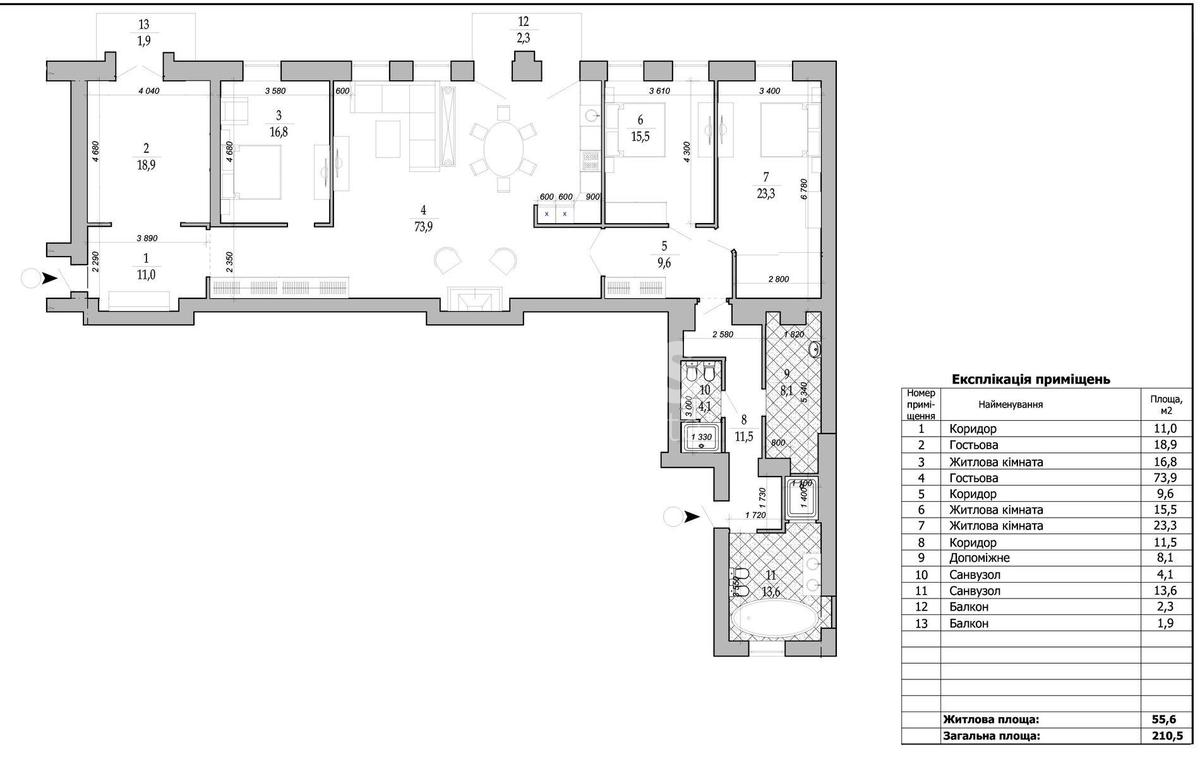
5 кімнатна квартира. Простора квартира після дорогого дизайнерського ремонту, виконаного італійським дизайнером у стилі мінімалізму. Планування роздільне: велика світла вітальня-студія з біо-каміном та виходом на затишний просторий балкон, три спальні, кабінет, два санвузли та пральня. Квартира обладнана меблями на кухні та сучасною побутовою технікою: варильна панель, духова шафа, мікрохвильова піч, холодильник, посудомийна машина, пральна і сушильна машини. Передбачено підігрів підлоги, кондиціонер, гардероб, балкон, лоджію, терасу та сигналізацію. Автономне опалення та система кондиціонування забезпечують максимальний комфорт навіть під час блекауту — працюють інтернет, опалення та водопостачання. Сучасний комплекс з автономними комунікаціями, розташований у зручному районі. У будинку передбачена охорона, сигналізація та доступ за контрольованою системою. Закрита охоронювана територія з парковкою для мешканців. Поруч розташовані супермаркети (зокрема Мегамаркет), салони краси, ресторани та інша необхідна інфраструктура. Хороша транспортна розв’язка забезпечує зручний доступ до всіх ключових точок міста.