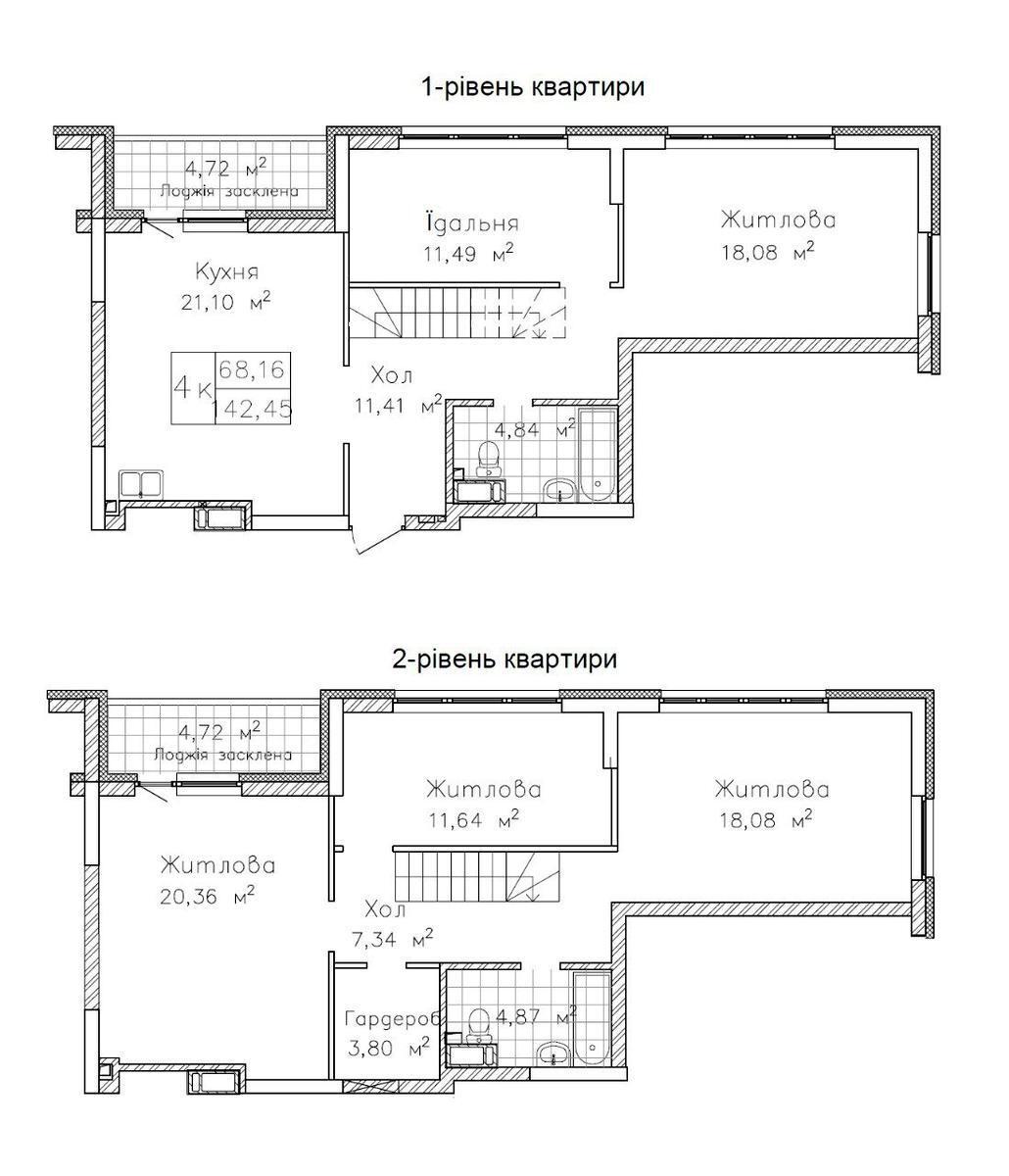
4к квартира вул. Львівська 15

  • Святошинський район вул. Львівська 15
  • Код: SF-3-239-018
  • Добавлено: 11.11.2025
  • Додати в обране
Тип ринку
Первинний ринок
Вулиця
вул. Львівська 15
Кількість кімнат
4
Поверх
0 Поверх
Поверховість
25 поверховий будинок
Загальна площа
143 м2
Загальний стан
Без ремонту
Ціна:
7 242 280 грн.
172 680 USD
  • AXIS Real Estate
  • AXIS Real Estate
  • AXIS Real Estate
Опис об'єкту

ЖК Святобор, 4 кімнатна квартира. Квартира має красиві, панорамні вікна, кухню -вітальню загальним метражем 32,59м2. Має сунвузли на кожному поверсі, додаткові зони для розміщення гардеробу. В квартирі мінімум несучих конструкцій, що дає можливість і легко перепланувати. Комплекс має зручну транспортну розвязку: до станціі метро Святошино та Житомирська -10 хвилин пішки, до станціі метро Хрещатик -15 хвилин на метро, до проспекту Перемоги - 5 хвилин пішки.

Додаткова інформація