3к квартира вул. Львівська 15

  • Святошинський район вул. Львівська 15
  • Код: SF-3-239-027
  • Добавлено: 11.11.2025
  • Додати в обране
Тип ринку
Первинний ринок
Вулиця
вул. Львівська 15
Кількість кімнат
3
Поверх
21 Поверх
Поверховість
25 поверховий будинок
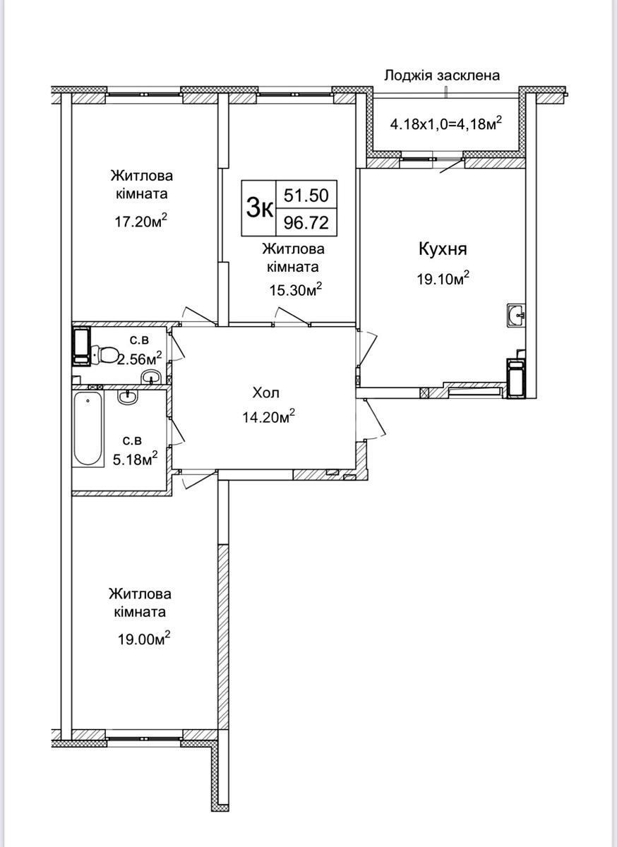
Загальна площа
97 м2
Загальний стан
Без ремонту
Ціна:
6 326 054 грн.
150 000 USD
Опис об'єкту

ЖК Святобор, 3 кімнатна квартира. Загальний метраж - 97.4м2. Квартира двустороння, видова. Має функціональне, правильне планування: три окремі спальні, кухню-вітальню з виходом на засклений та утеплений балкон (який можна приєднати до кухні при потребі); роздільний санвузол. Вікна дивляться у двір та на центр міста. Схід та захід. Комплекс має зручну транспортну розвязку: до станціі метро Святошино та Житомирська -10 хвилин пішки, до станціі метро Хрещатик -15 хвилин на метро, до проспекту Перемоги - 5 хвилин пішки.

Схожі пропозиції