3к квартира вул. Августина Волошина 32А

  • Солом'янський район вул. Августина Волошина 32А
  • Код: SF-3-277-060
  • Добавлено: 11.02.2026
  • Додати в обране
Тип ринку
Вторинний ринок
Вулиця
вул. Августина Волошина 32А
Кількість кімнат
3
Поверх
3 Поверх
Поверховість
7 поверховий будинок
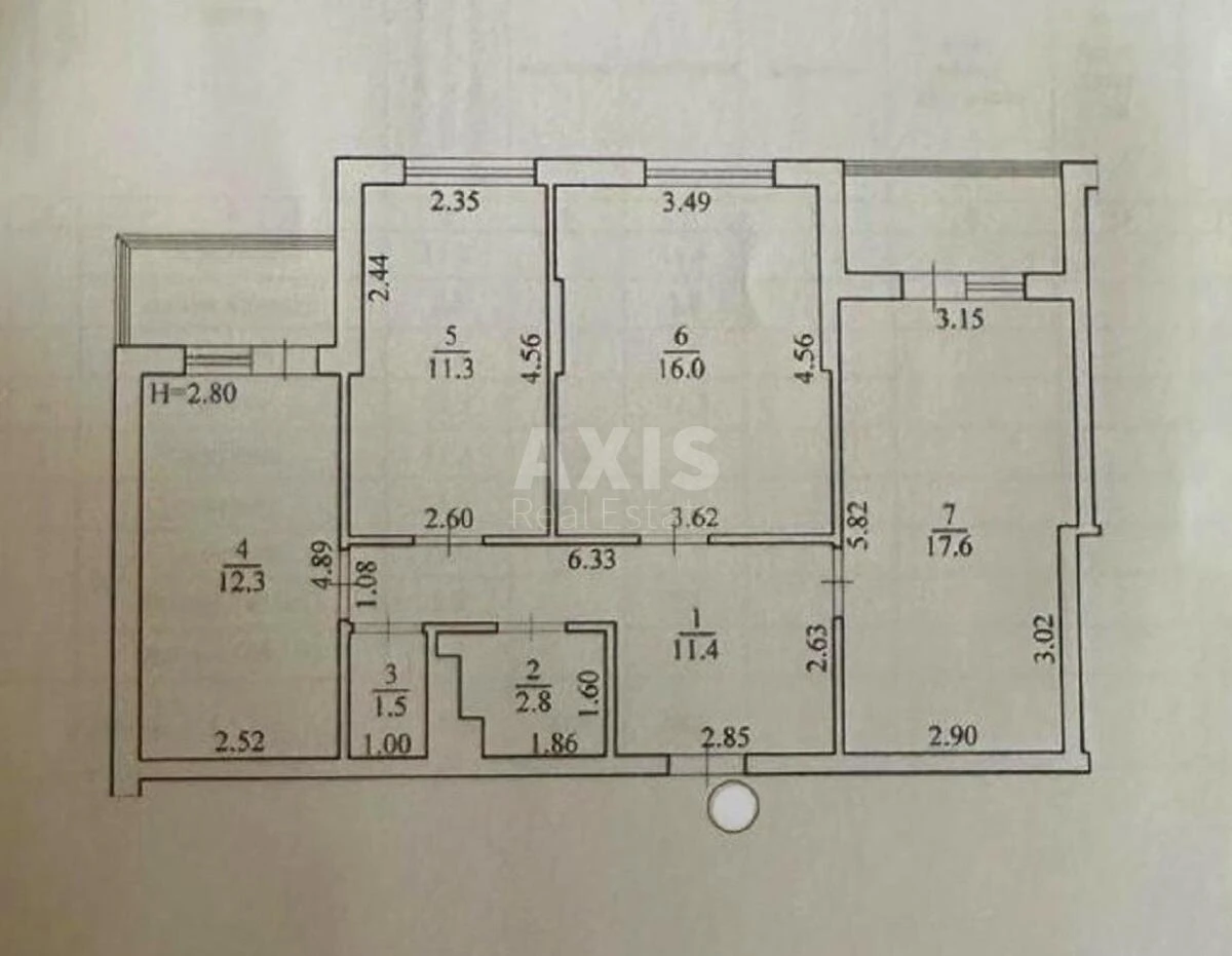
Загальна площа
79 м2
Загальний стан
Без ремонту
Ціна:
4 074 375 грн.
94 816 USD
Опис об'єкту

3 кімнатна квартира. Монтується індивідуальна система опалення, що працює від італійського двоконтурного газового котла «Фероллі», можливість встоновлювати твердопаливного котла, сонячних панелей. Прибудинкова територія закрита від сторонніх і цілодобово охороняється. Обладнано дитячий майданчик і комфортабельна зона відпочинку під навісом, яка закрита від негоди. Є гостьова парковка.

Схожі пропозиції