
3к квартира вул. Антонова Авіаконструктора 2Б
- Додати в обране
-
Подiлитись посиланням
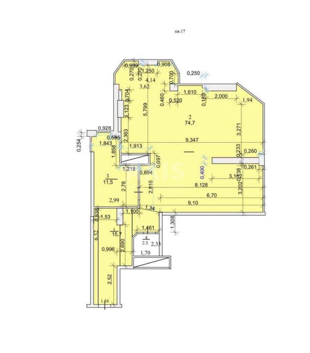
ЖК Sherwood, 3 кімнатна квартира. З вільним плануванням після будівельників, що дає можливість облаштувати простір відповідно до власного стилю. Великі панорамні вікна наповнюють кімнати світлом і відкривають чудовий краєвид на невеликий парк. Простора площа дозволяє створити дві повноцінні спальні кімнати з вікнами у підлогу та простору кухню-студію з зоною відпочинку. Окремої уваги заслуговує велика, майже 12-метрова ванна кімната з вікном, а також другий санвузол і зручний коридор, у якому можна облаштувати гардеробну чи систему шаф. Опалення індивідуальне газове, мультимедійні комунікації передбачають кабельне й цифрове телебачення та швидкісний інтернет. Будинок новий, доглянутий, із професійною охороною та діючим ОСББ. Для власників авто передбачено трирівневий підземний паркінг із ліфтом, а також наземні та багаторівневі місця для паркування. Закрита, огороджена територія житлового комплексу має власний ландшафтний дизайн, парк і зони відпочинку з фонтаном та місцями для вигулу собак. Для дітей обладнаний ігровий майданчик, для активного дозвілля — спортивний об’єкт. На території діють дитячий садок, кабінет лікаря, магазини, кафе та торгово-розважальний центр. Безпеку мешканців забезпечує цілодобова охорона.