3к квартира пров. Лабораторний 6

  • Печерський район пров. Лабораторний 6
  • Код: SF-3-281-293
  • Добавлено: 22.02.2026
  • Додати в обране
Тип ринку
Вторинний ринок
Вулиця
пров. Лабораторний 6
Кількість кімнат
3
Поверх
4 Поверх
Поверховість
25 поверховий будинок
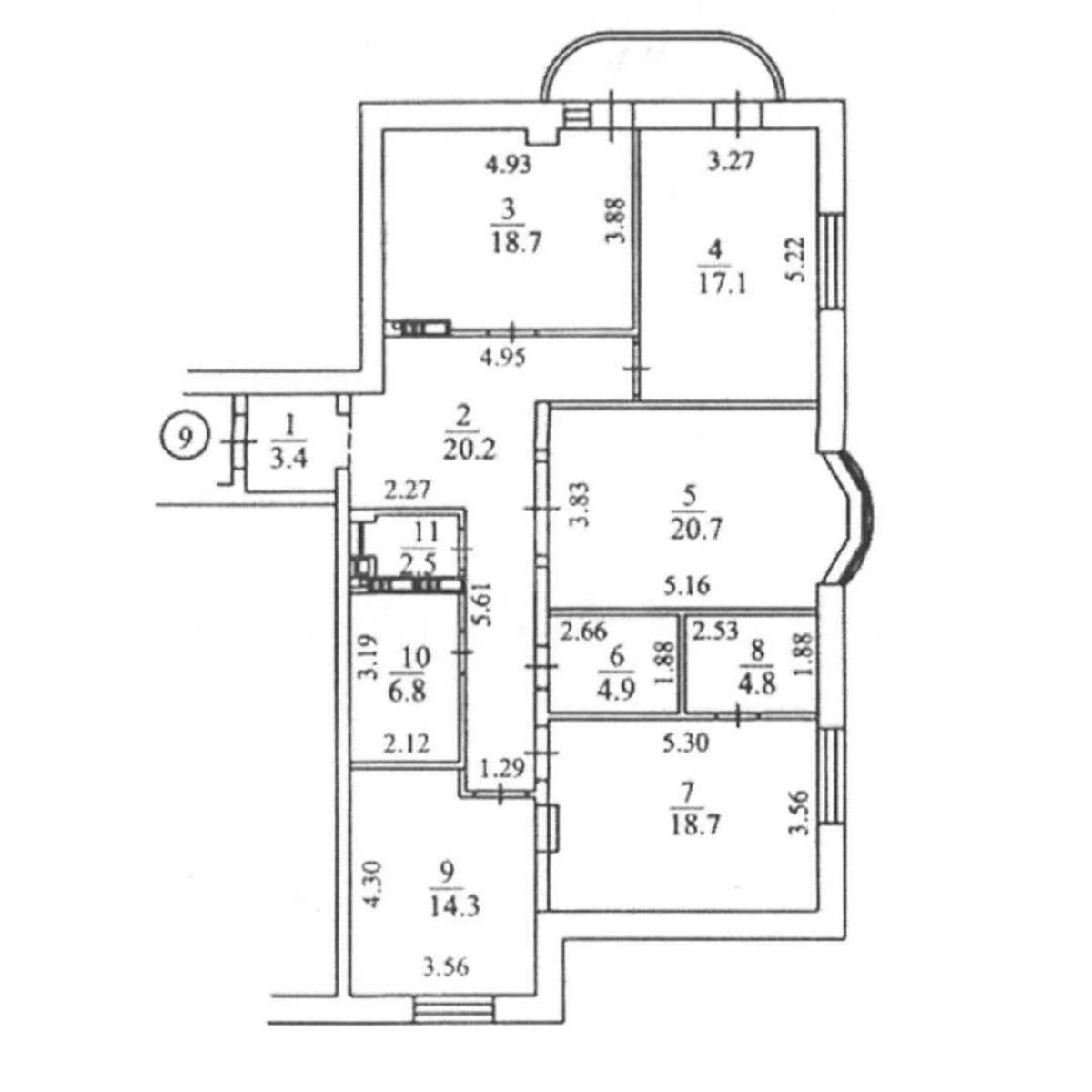
Загальна площа
133 м2
Загальний стан
Без ремонту
Ціна:
8 580 375 грн.
198 151 USD
Опис об'єкту

3 кімнатна квартира. Будинок введено в експлуатацію, квартира з документами, без ремонту. Встановлені лічильники. Інфраструктура: відділення банку, банкомат, аптека, лікарня, поліклініка, дитячий садок, метро, дитячий майданчик, відділення пошти, бювет, ресторан, кафе, школа, магазин, кіоск, Супермаркет, ТРЦ, Зупинка транспорту.

Схожі пропозиції