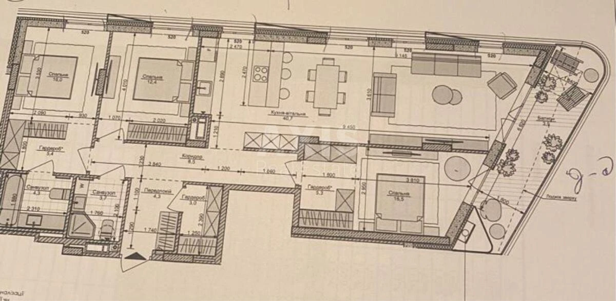
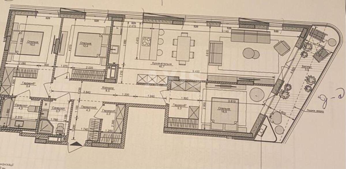
3к квартира бул. Рильського Тадея 1

  • Голосіївський район бул. Рильського Тадея 1
  • Код: SF-3-265-344
  • Добавлено: 25.02.2026
  • Додати в обране
Тип ринку
Первинний ринок
Вулиця
бул. Рильського Тадея 1
Кількість кімнат
3
Поверх
4 Поверх
Поверховість
9 поверховий будинок
Загальна площа
113 м2
Загальний стан
Без ремонту
Ціна:
11 260 543 грн.
260 000 USD
Опис об'єкту

ЖК Respublika, 3 кімнатна квартира. Квартира дуже світла. Є два вихода на терасу з кухні-вітальні та зі спальні. Вид у двір, на нову школу та стадіон. У ЖК є все необхідне для комфортного життя: медичний комплекс, гімназія та дитячий садок, басейн, ресторани, салони краси, спортивні і дитячі майданчики, а також зони відпочинку і BBQ, зона TRX, тенісні корти, поле для гри в футбол, баскетбол, волейбол, мультиполе для дітей, місце для вигулу домашніх тварин.

Схожі пропозиції